Schéma De Câblage - Kitchenaid Li32Ne Installation Instructions And Use & Care Manual

30" (76.2 cm) and 36" (91.4 cm) range hood
Table of Contents
Available languages

Available languages

Interface utilisateur électronique
DEL
DEL
BL
SORTIE: 700mA (2-15 V)
PILOTE
ENTRÉE: 120V
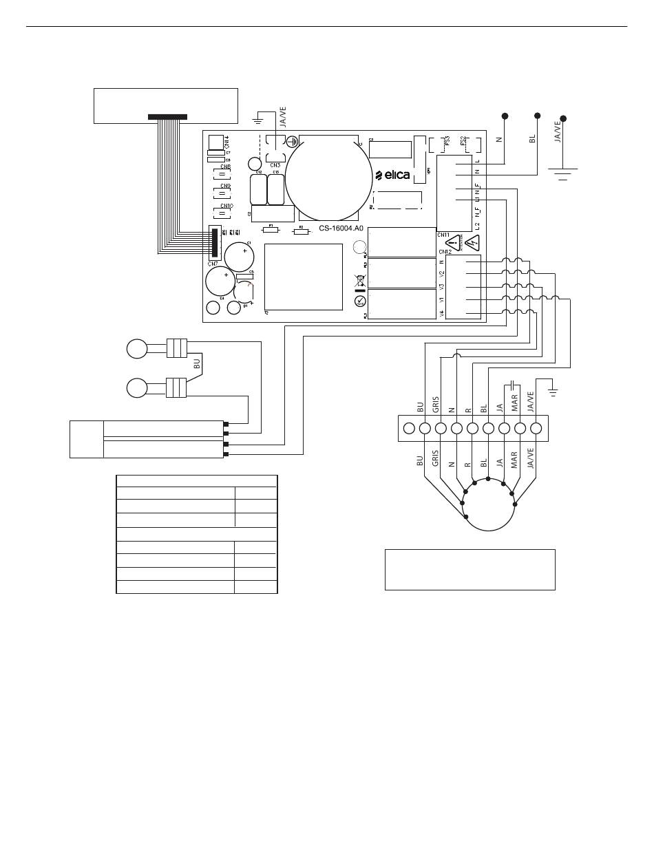
CARACTÉRISTIQUES DU MOTEUR
ALIMENTATION ÉLECTRIQUE
FRÉQUENCE
ABSORPTION DE PUISSANCE 420 W
RÉSISTANCE DU MOTEUR (Ω)
BLEU-NOIR
BLEU-GRIS
BLEU-ROUGE
BLEU-BLANC
30
SCHÉMA DE CÂBLAGE
N
N
BL
N
R
R
+
N
-
JA
BU
120 VCA
60 HZ
9.8
14.3
18
21.6
L
BU
JA
BU
R
GRIS
BL
N
25 uF
3
6
7
1
2
4
5
M
SE133B
Neu Terre
9
8
Table of Contents
loading
Need help?

Need help?

Do you have a question about the LI32NE and is the answer not in the manual?

Table of Contents