KitchenAid KUWL214KSB - 24" Undercounter Wine Cellar with Glass Door and Wood-Front Racks Manual

KitchenAid KUWL214KSB - 24" Undercounter Wine Cellar with Glass Door and Wood-Front Racks Manual

Advertisement

KitchenAid KUWL214KSB - 24" Undercounter Wine Cellar with Glass Door and Wood-Front Racks Manual

INSTALLATION REQUIREMENTS

Tools and Parts

Gather the required tools and parts before starting installation.

Tools and parts needed:

  • Phillips screwdriver.
  • Custom Overlay Door Panel - Refer "Custom Overlay Panel Preparation".
  • Custom handle and mounting hardware (optional).

Parts supplied:

  • M4 x 30 flathead screws (8).

Location Requirements


Explosion Hazard
Keep flammable materials and vapors, such as gasoline, away from wine cellar.
Failure to do so can result in death, explosion, or fire.


This appliance is intended to be used in household and similar applications such as:

  • Staff kitchen areas in shops, office and other working environments;
  • Farm houses and by clients in hotels, motels and other residential type environments;
  • Bed and breakfast type environments;
  • Catering and similar non-retail applications.

NOTES:

  • For the wine cellar to be fl ush with the front of the base cabinets, remove any baseboards or moldings from the rear of the opening. See "Product Dimensions" and later in this section, "Opening Dimensions."
  • It is recommended that you do not install the wine cellar near an oven, radiator, or other heat source.
  • Do not install in a location where the temperature will fall below 55°F (13°C). For best performance, do not install the wine cellar behind a cabinet door or block the base grille.

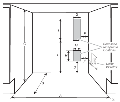
Opening dimensions:

  • Height dimensions are shown with the leveling legs extended to the minimum height.
    NOTE: When leveling legs are fully extended, add 5/8" (15 mm) to the height dimensions. See "Product Dimensions."
  • If the fl oor of the opening is not level with the kitchen fl oor, shim the opening to make it level with the kitchen floor.

Opening and utility location dimensions

Opening and utility location dimensions
Opening width - A 24" (60.96 cm) min.
Opening depth - B 24" (60.96 cm) min.
Opening height - C 341/2" (87.6 cm) min. 35" (88.9 cm) max.
Dimension - D 121/16" (30.64 cm)
Dimension - E 213/4" (55.16 cm)
Dimension - F 13/4" (4.44 cm)
Dimension - G 3" (7.55 cm)
Dimension - H 41/2" (11.37 cm)
Dimension - I 91/4" (23.47 cm)

For fl ush installation, the power outlet can be installed in adjacent cabinetry with a cutout on the power cord side for routing of the power cord.

The power outlet can also be recessed on the back wall behind the unit as per recommended receptacle locations in the above illustration.

Product Dimensions

Overall product
Width (up to hinge cover) 237/8" (60.72 cm)
Height (up to hinge cover) 343/8" (87.32 cm)
Panel ready models depth (with 3/4" panel and no handle) 2313/16" (60.5 cm)
Raw Door Height 305/8" (77.75 cm)
Depth (no handle) 235/8" (60.01 cm)

NOTE: The power cord is 60" (152.4 cm) long.

Product Dimensions

Custom Overlay Panel

NOTE: For standard stainless steel or glass door models, skip these instructions and go to "Electrical Requirements" section.

If you plan to install a custom overlay panel, you will need to create the panel yourself or consult a qualified cabinet maker or carpenter. Refer dimension drawings for panel specifications.

  • The thickness of the overlay panel must be 3/4" (19 mm).
  • Custom solid door overlay panel must not weigh more than 20 lb (9.07 kg).
  • Custom glass door overlay panel must not weigh more than 10 lb (4.54 kg).
  • Overlay panels weighing more than recommended may cause damage to your appliance.

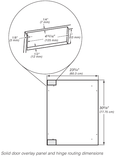
Solid door overlay panel - Preparation:

Create the custom overlay panel using the dimensions shown in the illustration "Solid door overlay panel and hinge routing dimensions". Route shaded areas to a 1/2" (12 mm) depth as shown.


The following graphic shows a custom panel for a door with the hinges installed on the right-hand side. If your wine cellar has the hinges installed on the left-hand side, rotate the custom frame 180° so the hinge markings will be on the left.

Solid door overlay panel - Preparation

Glass door overlay panel - Preparation:

Create the custom overlay panel using the dimensions shown in the illustration " Glass door overlay panel and hinge routing dimensions". Route shaded areas to a 1/2" (12 mm) depth as shown.


The following graphic shows a custom panel for a door with the hinges installed on the right-hand side. If your wine cellar has the hinges installed on the left-hand side, rotate the custom frame 180° so the hinge markings will

Glass door overlay panel - Preparation
Glass door overlay panel and hinge routing dimensions

Handle (optional)

Custom handles are typically attached to the custom overlay door panel only.

Refer instructions received with KitchenAid handle kits to install these handles on custom wood panels.

Custom handle needs to be installed on the door panel with countersunk holes and installed before the custom overlay door panel has been installed on the wine cellar door.

Electrical Requirements


Electrical Shock Hazard
Plug into a grounded 3 prong outlet.
Do not remove ground prong.
Do not use an adapter.
Do not use an extension cord.
Failure to follow these instructions can result in death, fire, or electrical shock.

Before you move your wine cellar into its final location, it is important to make sure you have the proper electrical connection.

Recommended grounding method:
A 115 V, 60 Hz, AC only, 15 A or 20 A fused, grounded electrical supply is required. It is recommended that a separate circuit serving only your wine cellar be provided. Use an outlet that cannot be turned off by a switch. Do not use an extension cord.

NOTE: Before performing any type of installation, cleaning, or removing a light bulb, unplug wine cellar or disconnect power.

INSTALLATION INSTRUCTIONS

Unpack the Wine Cellar


Excessive Weight Hazard
Use two or more people to move and install or uninstall appliance.
Failure to do so can result in back or other injury.

Before using your wine cellar, all packaging materials should be removed and the interior should be cleaned.

  • Remove tape and glue residue from surfaces before turning on the wine cellar. With your fingers, rub a small amount of liquid dish soap over any adhesive and wipe with warm water to remove.
  • Do not use sharp instruments, rubbing alcohol, fl ammable fl uids, or abrasive cleaners to remove tape or glue. These can damage the surfaces of your wine cellar. For more information, refer "Wine Cellar Safety" section.
  • Dispose of and/or recycle all packaging materials.
  • After all packaging materials have been removed, clean the inside of your wine cellar. Refer the cleaning instructions in "Cleaning" section.

NOTE: For standard stainless steel or glass door models, skip to "Door Closing" section.

Custom Overlay Panel Installation

  • Create custom overlay panel according to the specifications in the "Custom Overlay Panel" section.
  • KitchenAid is not responsible for the removal or addition of molding or decorative panels that would not allow access to the wine cellar for service.
  1. Open the door completely to 115°.
  2. Remove the gasket from the corners of the door, pulling gently until the two screw holes in each corner of the door can be seen.
    NOTE: The gasket does not have to be removed from the door, only the corners.
    1. Screw holes
    2. Gasket
  3. Using two people, hold the custom overlay panel against the door. Be sure that the top and bottom hinges fit accurately into the routing on back of the custom wood panel.
    Custom Overlay Panel Installation - Step 1
    NOTE: Handle needs to be installed before the custom overlay door panel has been installed on the wine cellar door.
  4. Fasten the custom panel to the door using two wood screws (provided in installation kit) at each corner.
    Custom Overlay Panel Installation - Step 2
    1. M4 x 30 fl athead screws (provided in installation kit)
  5. Press the gasket firmly back into it's original position.

Installation and Door Closing

Your wine cellar has four leveling legs. If your wine cellar seems unsteady or you want the door to close more easily, adjust the wine cellar's tilt using the instructions below.


Electrical Shock Hazard
Plug into a grounded 3 prong outlet.
Do not remove ground prong.
Do not use an adapter.
Do not use an extension cord.
Failure to follow these instructions can result in death, fire, or electrical shock.

  1. Plug into a grounded 3 prong outlet.

    Excessive Weight Hazard
    Use two or more people to move and install or uninstall appliance.

    Failure to do so can result in back or other injury.
    When moving your Wine Cellar:
    Your wine cellar is heavy. When moving the wine cellar for cleaning or service, be sure to cover the oor with cardboard or hardboard to avoid door damage. Always pull the wine cellar straight out when moving it. Do not wiggle or "walk" the wine cellar when trying to move it, as oor damage could occur.
  2. Move the wine cellar into its final location.
  3. Turn the leveling legs to the right to lower the wine cellar, or turn the leveling legs to the left to raise it.
    It may take several turns of the leveling legs to adjust the tilt of the wine cellar.
    NOTE: Having someone push against the top of the wine cellar takes some weight off the leveling legs. This makes it easier to adjust the leveling legs.
  4. Open the door and check that it closes as easily as you like. If not, tilt the wine cellar slightly more to the rear by turning both front leveling screws to the right.

USING WINE CELLAR

Controls

USING WINE CELLAR - Controls - Step 1

NOTES:

  • When the wine cellar is turned On for the fi rst time, the temperature defaults to the recommended setting.
  • There are two adjustable temperature controls, one for each compartment.
  • The left temperature and preset touch pads control the temperature of the upper compartment.
  • The right temperature and preset touch pads control the temperature of the lower compartment.
  1. Turning Control On/Off

    The first time that the wine cellar is plugged in, the control will be in Cool Off mode. Cool On and Cool Off will be the only options that display.
    Press COOL ON for 3 seconds to turn on the wine cellar. All menus and recommended temperature settings will be displayed.
  2. Auto Light Option

    Features a proximity sensor in the base grille that automatically ramps on the LED interior display lighting when motion is detected.
    When motion is no longer detected, the interior display light will turn off after 2 minutes.
    Press the AUTO LIGHT option to activate this feature.
    When the AUTO LIGHT is not activated, the interior display light will only turn on when the door is opened.
    NOTE: Leaving the light on for an extended period of time will slightly increase the temperature of the wine cellar.
  3. Control Lock

    Avoids unintended temperature changes and makes it easy to clean the controls.
    To activate Lock Mode, press and hold LOCK for 3 seconds. After the countdown, all other displays will turn off and become unavailable except Cool On, Cool Off and Lock.
  4. Using Presets
    USING WINE CELLAR - Controls - Step 2
    For your convenience, your wine cellar also has controls that are preset to recommended storage temperature for specific wines. Pressing any preset option will set the temperature to the recommended temperature for the specified wine:
    Assorted: 54°F (12°C)
    Champagne: 46°F (7°C)
    Red wine: 64°F (17°C)
    Sweet wine: 42°F (5°C)
    White wine: 50°F (10°C)
  5. Adjusting the Temperatures

    To adjust set point temperatures, press "+" (plus) or "-" (minus) until the desired temperature setting is reached. The control is set correctly when the wine is as cold as you like it.
    NOTES:
    • The set point for the wine cellar is 50°F (10°C) for both the upper and lower compartments. The set point range for the upper compartment is 42°F to 54°F (5°C to12°C) and 42°F to 64°F (5°C to 17°C) for the lower compartment.
    • Wait at least 24 hours between adjustments for the product to acclimate. Recheck the temperatures before making further adjustments.
  6. Viewing Celsius/Fahrenheit Temperatures

    Press the F/C touch pad to toggle between displaying the temperature in degrees Fahrenheit and degrees Celsius.
    The corresponding indicator will illuminate.
  7. Sabbath Mode
    • Allows the door of the wine cellar to be opened or closed on the Sabbath or other religious holidays without directly turning on or off any lights, digital readouts, fans, valves, tones or alarms. By selecting this feature, the temperature set points remain unchanged, but the control panel lights, interior lights, and control audio turn off. For most efficient wine cellar operation, it is recommended to exit the Sabbath Mode when it is no longer required.
    • Press and hold SABBATH for 3 seconds to turn on the feature. After the 3 second countdown, the feature will activate and all other displays will turn Off.
    • Press and hold SABBATH for 3 seconds to turn off the feature and turn on the display.
  8. Over Temp Alarm

    The Over Temperature feature is designed to let you know when the wine cellar temperature rises above 70°F (21°C) for 4 hours or longer. The audio alarm will shut off automatically when the temperature returns to normal. To let you know an Over Temperature condition occurred, the indicator light will continue to flash until the Reset Alarm touch pad is pressed.
    If the over temperature condition is still present when an Over Temp reset is performed, the indicator light will continue to reactivate every 4 hours until the wine cellar temperature is below 70°F (21°C).
    NOTE: These features will not appear on your control unless your wine cellar is above 70°F (21°C) and the alarm requires a reset.
  9. Door Open Alarm
    Helps avoid wine from spoiling by giving an audio and visual alert if the door is left open for 5 minutes.
    If the door is open longer than 5 minutes, an alarm will sound every 2 minutes until the door is closed or any control is pressed.
  10. Showroom Mode
    This mode is used only when the wine cellar is on display in a retail store. To activate Showroom Mode, press and hold both Cool On and Sabbath for 3 seconds. If you unintentionally turn on Showroom Mode, Cool Off will light up on the display, and the controls will appear to work. Exit Showroom Mode by pressing and holding COOL ON and SABBATH at the same time for 3 seconds.

Normal Sounds

Your new wine cellar may make sounds that your old one didn't make. Because the sounds are new to you, you might be concerned about them. Most of the new sounds are normal. Hard surfaces, such as the fl ooring and surrounding structures, can make the sounds seem louder. The following describes the kinds of sounds and what may be making them.

  • Your wine cellar is designed to run more efficiently to keep your wine at the desired temperatures and to minimize energy usage. The high efficiency compressor and fans may cause your wine cellar to run longer than your old one.
  • You may also hear a pulsating or high-pitched sound from the compressor or fans adjusting to optimize performance.
  • Rattling noises may come from the fl ow of refrigerant or items stored inside the wine cellar.
  • As each cycle ends, you may hear a gurgling sound due to the refrigerant fl owing in your wine cellar.
  • You may hear water running into the drain pan when the wine cellar is defrosting.
  • You may hear clicking sounds when the wine cellar starts or stops running.

Stocking the Wine Cellar

NOTE: For optimum wine storage, place white wines at the top of the wine cellar, light red wines in the center and champagne/larger diameter wine bottles at the bottom.
Stocking the Wine Cellar

Racks 1-5: For storing up to eight 750 ml wine bottles [diameter less than or equal to 31/8" (80 mm)].
Rack 6: For storing up to five larger wine bottles [diameter up to 33/4" (95 mm)].

To stock the Wine Cellar - Racks 1 to 5:

NOTE: The wine rack can be stocked with the bottles facing either direction, however, to optimize storage adjacent bottles should be facing in opposite.

  1. Start stocking the wine cellar with the bottom display rack (5).
  2. Starting on the left-hand side, place the first bottle on the bottom of the rack with the neck of the bottle facing the front of the wine cellar.
  3. Place the next bottle on its side with the neck of the bottle facing the back of the wine cellar. Alternate the direction of the bottles, in this manner, until the display rack is full.
  4. Slide the bottom rack into place and pull the next rack (4) forward.
  5. Continue stocking each remaining rack as described in the above steps.

To stock the Wine Cellar - Rack 6:

  1. Starting from left-hand side of the bottom rack, place the first bottle with the neck of the bottle facing the front of the wine cellar.
  2. Continue to place the remaining bottles facing in the same direction.

Wine Racks

Remove and replace the racks:

  1. Pull the rack forward until it stops.
  2. Press down on the left-hand lever while lifting up on the right-hand lever to release the rack. Pull the rack forward and lift it up and out of the rack supports.
    Wine Racks - Step 1
  3. Replace the rack by inserting the rack into the supports and sliding it in until it locks.
    Wine Racks - Step 2

CARE AND CLEANING


Explosion Hazard
Risk of fire or explosion.
Flammable refrigerant used.

Do not use mechanical devices to defrost refrigerator.
Do not puncture refrigerant tubing.

Clean the wine cellar once a month to avoid buildup of odors. Wipe up spills immediately.

To clean your Wine Cellar:

  1. Unplug wine cellar or disconnect power.
  2. Remove all racks from inside the wine cellar.
  3. Hand wash, rinse, and dry removable parts and interior surfaces thoroughly. Use a clean sponge or soft cloth and a mild detergent in warm water.
    • To avoid damaging wooden tines and trim pieces, wipe them off with a clean sponge or soft cloth and warm water. Do not use detergent or immerse the entire rack into water when cleaning.
    • Do not use abrasive or harsh cleaners such as window sprays, scouring cleansers, fl ammable fl uids, cleaning waxes, concentrated detergents, bleaches or cleansers containing petroleum products on plastic parts, interior and door liners or gaskets. Do not use paper towels, scouring pads, or other harsh cleaning tools. These can scratch or damage materials.
    • To help remove odors, you can wash interior walls with a mixture of warm water and baking soda [2 tbs to 1 qt (26 g to 0.95 L) of water].
  4. Wash stainless steel and painted metal exteriors with a clean sponge or soft cloth and a mild detergent in warm water. Do not use abrasive or harsh cleaners, or cleaners containing chlorine. These can scratch or damage materials. Dry immediately with a soft, dry cloth to absorb any remaining water..
    NOTE: To keep your stainless steel wine cellar looking like new and to remove minor scuffs or marks, it is recommended that you use the manufacturer's approved Stainless Steel Cleaner and Polish. To order the cleaner, refer "Accessories" section.
    • This cleaner is for stainless steel parts only!
    • Do not allow the Stainless Steel Cleaner and Polish to come into contact with any plastic parts such as the trim pieces, dispenser covers or door gaskets. If unintentional contact does occur, clean plastic part with a sponge and mild detergent in warm water. Dry immediately with a soft, dry cloth to absorb any remaining water.
  5. Replace the racks.

    Explosion Hazard
    Risk of fire or explosion due to puncture of refrigerant
    tubing.

    Follow handling instructions carefully.
    Flammable refrigerant used.
    1. Remove the base grille to access condenser for cleaning. Refer "Removing Base Grille" section.
    2. Clean the condenser coils regularly. They are located behind the base grille. Coils may need to be cleaned as often as every other month. This may help save energy.

Removing Base Grille

You must remove the base grille to access the condenser coils for cleaning.

To remove the base grille:

  1. Open the wine cellar door.
    Removing Base Grille - Step 1
    1. Screws
  2. Using a Phillips screwdriver, remove the two screws.
  3. Remove the base grille.

To replace the base grille:

  1. Open the wine cellar door.
  2. Position the base grille so that both tabs align and the base grille snaps into place. Replace two screws. Tighten the screws.

Vacation Care

If you choose to turn the wine cellar off before you leave, follow these steps.

  1. Remove all wine bottles from the wine cellar.
  2. Unplug the wine cellar.
  3. Clean the wine cellar. Refer "Cleaning" section.
  4. Tape a rubber or wood block to the top of the door to prop it open far enough for air to get in. This stops odor and mold from building up.

Moving Care

When you are moving your wine cellar to a new home, follow these steps to prepare it for the move.

  1. Remove all wine bottles from the wine cellar.
  2. Unplug the wine cellar.
  3. Clean, wipe, and dry it thoroughly.
  4. Take out all removable parts, wrap them well, and tape them together so they don't shift and rattle during the move.
  5. Tape the doors shut and tape the power cord to the wine cellar.

TROUBLESHOOTING

Try the solutions suggested here first in order to avoid the cost of an unnecessary service call.


Electrical Shock Hazard
Plug into a grounded 3 prong outlet.
Do not remove ground prong.

Do not use an adapter.
Do not use an extension cord.
Failure to follow these instructions can result in death, fire, or electrical shock.

GENERAL OPERATION Possible Causes and/or Recommended Solutions
Wine Cellar will not operate
  • Power supply cord unplugged? Plug into a grounded 3 prong outlet.
  • Is outlet working? Plug in a lamp to see if the outlet is working.
  • Household fuse blown, or a circuit breaker tripped? Replace the fuse or reset the circuit. If the problem continues, call an electrician.
  • Are controls on? Be sure that the wine cellar controls are on. Refer "Controls" section.
The motor seems to run too much
  • Is the temperature outside hotter than normal? Expect the motor to run longer under warm conditions. At normal temperatures, expect your motor to run about 40% to 80% of the time. Under warmer conditions, expect it to run even more of the time.
  • Is the door opened often? Expect the motor to run longer when this occurs. In order to conserve energy, try to get everything you need out of the wine cellar at once. Keep wine bottles positioned label side up so that they are easy to fi nd, and close the door as soon as the wine is removed.
The motor seems to run too much
  • Is the control set correctly for the surrounding conditions? Refer "Controls" section.
  • Is the door closed completely? Push the door firmly shut. If it will not shut all the way, refer "The door will not close completely" later in this section.
  • Are the condenser coils dirty? This obstructs air transfer and makes the motor work harder. Clean the condenser coils. Refer "Cleaning" section.
TEMPERATURE AND MOISTURE' Possible Causes and/or Recommended Solutions
Temperature is too warm
  • Is the door opened often? Be aware that the wine cellar will warm when this occurs. In order to keep the wine cellar cool, try to get everything you need out of the wine cellar at once. Keep wine bottles positioned label side up so that they are easy to fi nd, and close the door as soon as the wine is removed.
  • Is the control set correctly for the surrounding conditions? Refer "Controls" section.
  • Is the base grille blocked? For best performance, do not install the wine cellar behind a cabinet door or block the base grille.
There is interior moisture buildup:
  • Is the door opened often? To avoid humidity buildup, try to get everything you need out of the wine cellar at once, keep wine bottles positioned label side up so that they are easy to fi nd, and close the door as soon as the wine is removed. When the door is opened, humidity from the room air enters the wine cellar. The more often the door is opened, the faster humidity builds up, especially when the room itself is very humid.
  • Is it humid? It is normal for moisture to build up inside the wine cellar when the air is humid.
  • Is the control set correctly for the surrounding conditions? Refer "Controls" section.
DOOR Possible Causes and/or Recommended Solutions
The door is difficult to open
  • Is the gasket dirty or sticky? Clean the gasket and the surface that it touches. Rub a thin coat of paraffi n wax on the gasket following cleaning.

    Explosion Hazard
    Use nonflammable cleaner.

    Failure to do so can result in death, explosion, or fire.
The door will not close completely
  • Are the racks out of position? Put the racks back into their correct positions. Refer "Wine Racks" section for more information.
  • Is the gasket sticking? Clean the gasket and the surface that it touches. Rub a thin coat of paraffi n wax on the gasket following cleaning.

ASSISTANCE

If you need service:
Before calling for assistance or service, please check "Troubleshooting." It may save you the cost of a service call. If you still need help, follow the instructions below.
When calling, please know the purchase date and the complete model and serial number of your appliance. This information will help us to better respond to your request. Please refer to the warranty page in this manual for more information on service.

If you need replacement parts:
Component parts should be replaced with like components and servicing should be done by factory authorized service personnel, so as to minimize the risk of possible ignition due to incorrect parts or improper service.

In the U.S.A.

Call the KitchenAid Customer eXperience Center toll free: 1-800-422-1230.

Our Consultants Provide Assistance With:

  • Features and specifications on our full line of appliances.
  • Installation information.
  • Use and maintenance procedures.
  • Accessory and repair parts sales.
  • Specialized customer assistance (Spanish speaking, hearing impaired, limited vision, etc.).
  • Referrals to local dealers, repair parts distributors, and service companies. KitchenAid designated service technicians are trained to fulfill the product warranty and provide after-warranty service, anywhere in the United States.

To locate the KitchenAid designated service company in your area, you can also look in your telephone directory Yellow Pages.

For Further Assistance
If you need further assistance, you can write to KitchenAid with any questions or concerns at:

  • KitchenAid Brand Home Appliances
  • Customer eXperience Center
  • 553 Benson Road
  • Benton Harbor, MI 49022-2692

Please include a daytime phone number in your correspondence.

In Canada

Call the KitchenAid Canada Customer eXperience Centre toll free: 1-800-807-6777.

Our Consultants Provide Assistance With:

  • Features and specifications on our full line of appliances.
  • Use and maintenance procedures.
  • Accessory and repair parts sales.
  • Referrals to local dealers, repair parts distributors, and services companies. KitchenAid Canada designated service technicians are trained to fulfill the product warranty and provide after-warranty service, anywhere in Canada.

For Further Assistance
If you need further assistance, you can write to KitchenAid Canada with any questions or concerns at:

KitchenAid Canada
Customer eXperience Centre
200 – 6750 Century Ave.
Mississauga, Ontario L5N 0B7
Please include a daytime phone number in your correspondence.

Accessories

The following accessories are available for your wine cellar.
To order an accessory, contact us and ask for the Part Number.
In the U.S.A., visit our webpage www.kitchenaid.com/accessories or call 1-800-442-9991.
In Canada, visit our webpage www.whirlpoolparts.ca or call 1-800-807-6777.
Stainless Steel Cleaner and Polish
Order Part #4396095

WINE CELLAR SAFETY

We have provided many important safety messages in this manual and on your appliance. Always read and obey all safety messages.

This is the safety alert symbol. This symbol alerts you to potential hazards that can kill or hurt you and others. All safety messages will follow the safety alert symbol and either the word "DANGER" or "WARNING." These words mean:


You can be killed or seriously injured if you don't immediately follow instructions.


You can be killed or seriously injured if you don't follow instructions.

All safety messages will tell you what the potential hazard is, tell you how to reduce the chance of injury, and tell you what can happen if the instructions are not followed.

IMPORTANT SAFETY INSTRUCTIONS


To reduce the risk of fire, electric shock, or injury when using your wine cellar, follow these basic precautions:

  • Plug into a grounded 3 prong outlet.
  • Do not remove ground prong.
  • Do not use an adapter.
  • Do not use an extension cord.
  • Disconnect power before servicing.
  • Replace all parts and panels before operating.
  • Remove doors from your old wine cellar.
  • Use non flammable cleaner.
  • Do not store or use petrol, flammable liquids or gas in the vicinity of this or other electrical appliances. The fumes can cause fires or explosions.
  • Do not store explosive substances such as aerosol cans with a flammable propellant in this wine cellar.
  • Do not use or place electrical devices inside the wine cellar compartments if they are not of the type expressly authorized by the manufacturer.
  • Use two or more people to move and install wine cellar.
  • This appliance is not intended for use by persons (including children) with reduced physical, sensory or mental capabilities, or lack of experience and knowledge, unless they have been given supervision or instruction concerning use of the appliance by a person responsible for their safety.
  • Children should be supervised to ensure that they do not play with the appliance.
  • To avoid the risk of children becoming trapped and suffocating, do not allow them to play or hide inside the wine cellar.
  • If the power supply cord is damaged, it must be replaced by the manufacturer or its service agent or a similarly qualified person.
  • Keep ventilation openings, in the appliance enclosure or in the built-in structure, clear of obstruction.
  • Do not use mechanical devices or other means to accelerate the defrosting process, other than those recommended by the manufacturer
  • Do not damage the refrigerant circuit.

Proper Disposal of your Old Wine Cellar


Risk of child entrapment. Before you throw away your old Wine Cellar:

  • Take off the door.
  • Leave the shelves in place so that children may not easily climb inside.


Suffocation Hazard
Remove doors or lid from your old appliance.
Failure to do so can result in death or brain damage.


Child entrapment and suffocation are not problems of the past. Junked or abandoned wine cellars are still dangerous – even if they will sit for "just a few days."

If you are getting rid of your old wine cellar, please follow these instructions to help prevent accidents.


Important information to know about disposal of refrigerants:

Dispose of refrigerator in accordance with Federal and Local regulations. Refrigerants must be evacuated by a licensed, EPA certified refrigerant technician in accordance with established procedures.

Download manual

Here you can download full pdf version of manual, it may contain additional safety instructions, warranty information, FCC rules, etc.

Download KitchenAid KUWL214KSB - 24" Undercounter Wine Cellar with Glass Door and Wood-Front Racks Manual

Documents / Resources

References

Advertisement

Need help?

Need help?

Do you have a question about the KUWL214KSB and is the answer not in the manual?

Questions and answers

Table of Contents