Sign In
Upload
Download
Table of Contents
Contents
Add to my manuals
Delete from my manuals
Share
URL of this page:
HTML Link:
Bookmark this page
Add
Manual will be automatically added to "My Manuals"
Print this page
×
Bookmark added
×
Added to my manuals
Manuals
Brands
Frigidaire Manuals
Oven
FGB24L2EC - 24" Gas Wall Oven
Installation instructions manual
Frigidaire FGB24L2EC Installation Instructions Manual page 19
Frigidaire fgb24l2ec: install guide
Hide thumbs
Also See for FGB24L2EC
:
Use & care manual
(16 pages)
,
Specifications
(2 pages)
,
Product specifications
(2 pages)
1
2
3
4
5
6
7
8
9
10
11
12
13
14
15
16
17
18
19
20
Table Of Contents
21
page
of
21
Go
/
21
Contents
Table of Contents
Bookmarks
Table of Contents
Available languages
EN
ES
Available languages
ENGLISH, page 1
ESPAÑOL, página 9
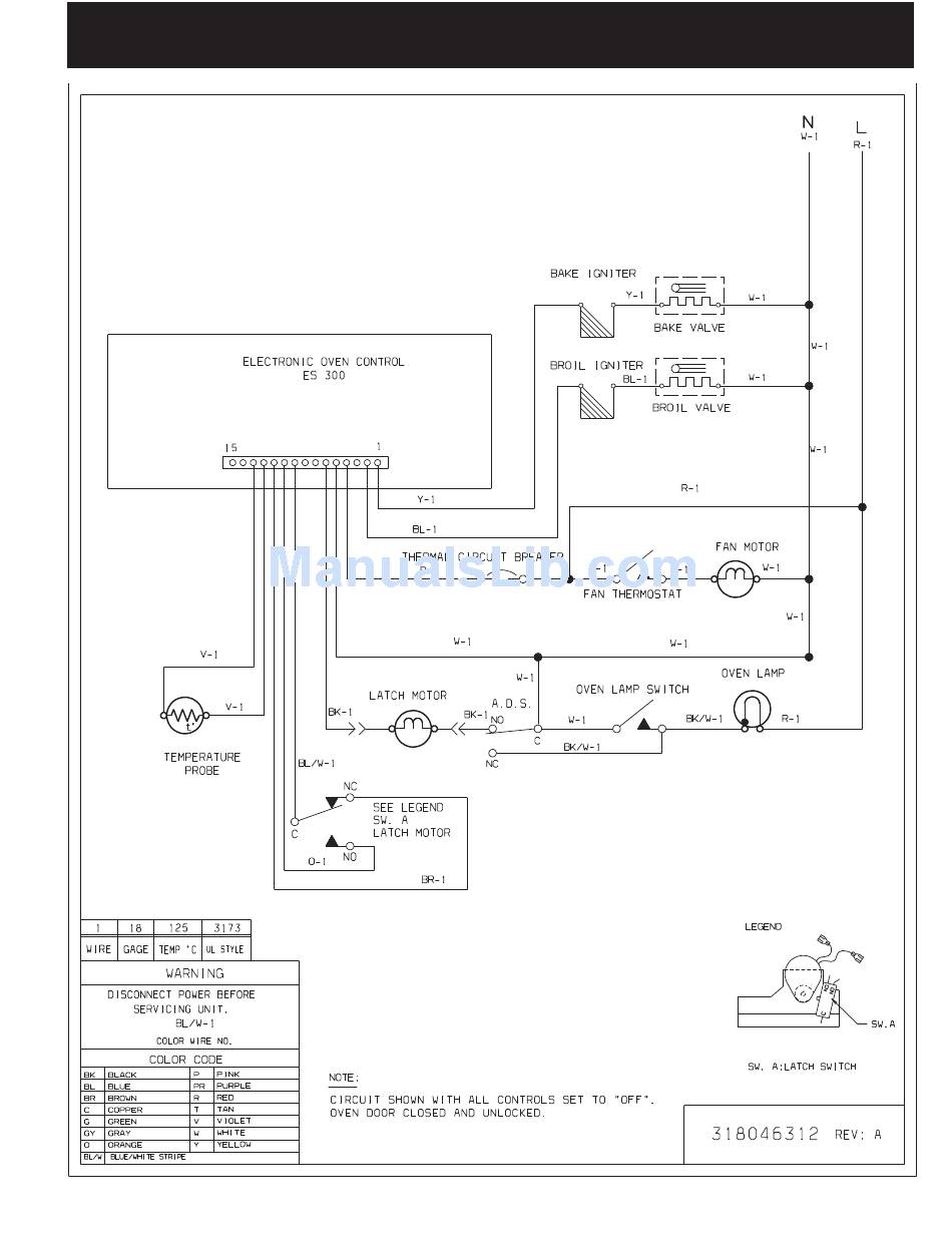
WIRING DIAGRAM - DIAGRAMA DE LA INSTALACIÓN ALÁMBRICA
(For Self-Clean Models with 1½ Oven Cavity - Para modelos auto-limpiables con 1½ cavidad)
19
Table of
Contents
Previous
Page
Next
Page
1
...
16
17
18
19
20
21
Show Quick Links
Quick Links:
Power Failure
Important Safety Instructions
Cabinet Installation
Adjusting Oven Height
Connection to Gas
Lp/Propane Gas Conversion
Natural Gas Conversion
Check Operation
Hide quick links:
Permanently
Temporary
Cancel
Table of Contents
Need help?
Do you have a question about the FGB24L2EC and is the answer not in the manual?
Ask a question
Go to Questions and Answers
Related Manuals for Frigidaire FGB24L2EC
Oven Frigidaire 318200964 Use & Care Manual
Frigidaire wall oven use & care guide (24 pages)
Oven Frigidaire FGB24L2EC Use & Care Manual
Single & double (16 pages)
Oven Frigidaire FGB24L2AB - 24 Inch Single Gas Wall Oven Wiring Diagram
Wiring diagram (all languages) (1 page)
Oven Frigidaire FED365ESC Control Manual
Electronic oven (9 pages)
Oven Frigidaire FGB24L2AS Specifications
24" gas single wall ovens (6 pages)
Control Panel Frigidaire Oven User Manual
Electronic oven control (4 pages)
Oven Frigidaire FGB24L2A Specifications
24" single gas wall oven (2 pages)
Oven Frigidaire FGB24S5A Specifications
24" single gas wall oven (2 pages)
Oven Frigidaire FGB24S5DC Specifications
Single wall oven 24" gas (2 pages)
Oven Frigidaire FGB24T3E C Specifications
Frigidaire fgb24t3e: specifications (2 pages)
Oven Frigidaire FGB24L2AB - 24 Inch Single Gas Wall Oven Product Specifications
30" gas single wall ovens (2 pages)
Oven Frigidaire FGB24S5AB - 24 Inch Single Gas Wall Oven Specifications
24" gas single wall ovens (2 pages)
Oven Frigidaire FGB24S5AB - 24 Inch Single Gas Wall Oven Wiring Diagram
Wiring diagram (all languages) (2 pages)
Oven Frigidaire FGB24S5AS - 24 Inch Single Gas Wall Oven Specifications
24" gas single wall ovens (2 pages)
Oven Frigidaire FGB24S5DC - 24 Inch Single Gas Wall Oven Specifications
24" gas single wall oven (2 pages)
Oven Frigidaire FGB24L2AS - 24 Inch Single Gas Wall Oven Wiring Diagram
Wiring diagram (all languages) (1 page)
Related Products for Frigidaire FGB24L2EC
Frigidaire FGB24L2AC
Frigidaire FGB24L2A
Frigidaire FGB24L2E C
Frigidaire FGB24L2ASB
Frigidaire FGB24L2ABB
Frigidaire FGB24L2ABD
Frigidaire FGB24L2ASD
Frigidaire FGB24L2ECD
FRIGIDAIRE FGB24L2ASC
FRIGIDAIRE FGB24L2ABC
FRIGIDAIRE FGB24L2ECC
FRIGIDAIRE FGB24L2ASA
FRIGIDAIRE FGB24L2ABA
Frigidaire FGB24S5DCH
FRIGIDAIRE FGB24S5ASE
Frigidaire FGB24S5ABC
This manual is also suitable for:
Fgb24s5dc
Fgb24t3ec
Fgb24l2ab - 24 inch single gas wall oven
Fgb24l2as - 24 inch single gas wall oven
Fgb24s5ab - 24 inch single gas wall oven
Fgb24s5as - 24 inch single gas wall oven
...
Show all
Fgb24t3eb - 24 inch single gas wall oven
Fgb24t3es
Fgb24t3eb
Fgb24l2ab
Fgb24s5ab
Table of Contents
Print
Rename the bookmark
Delete bookmark?
Delete from my manuals?
Login
Sign In
OR
Sign in with Facebook
Sign in with Google
Upload manual
Upload from disk
Upload from URL
Need help?
Do you have a question about the FGB24L2EC and is the answer not in the manual?