D.cpu Schematic Diagram - Jvc Gr-Dvl145Eg Schematic Diagrams

Digital video camera
Hide thumbs Also See for GR-DVL145EG:
Table of Contents

Advertisement

4.4

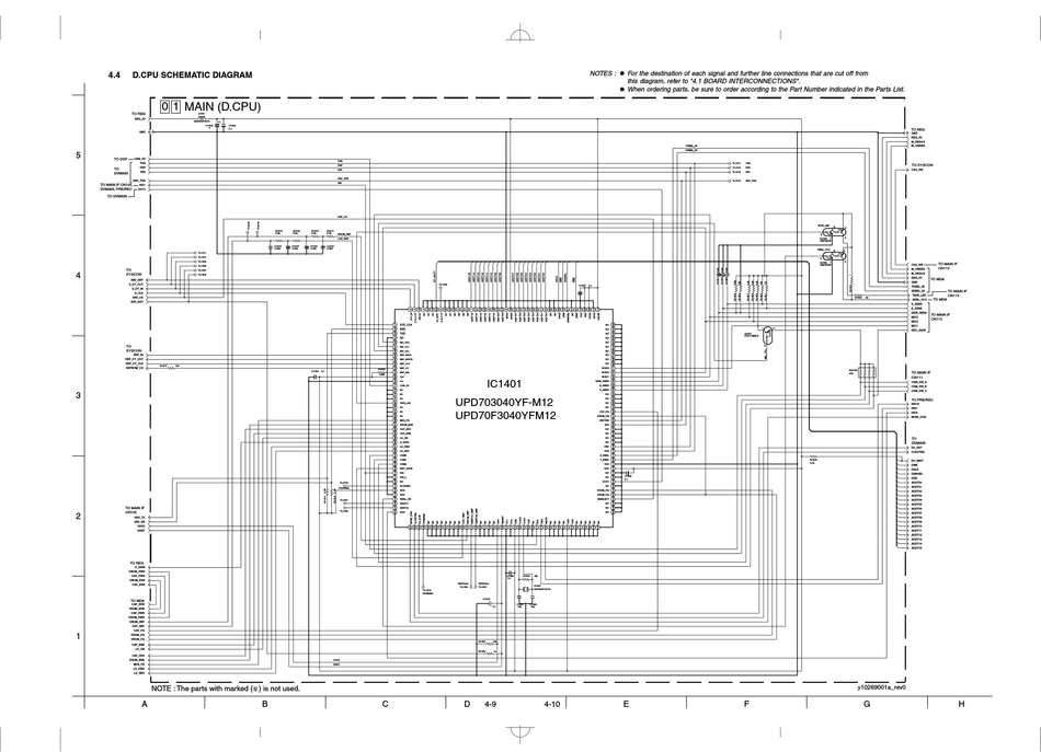
D.CPU SCHEMATIC DIAGRAM

0 1 MAIN (D.CPU)
TO REG
L1401
REG_3V
NQR006-001X
C1408
C1403
T
0.1
GND
5
TO DSP
CAM_VD
TSR
FRP
TO
SPA
DVMAIN
SRV_TRK
TO MAIN IF CN105,
HID1
DVMAIN, PRE/REC
OUTV
TO DVMAIN
TL1411
TL1410
TL1409
TL1408
TO
TL1407
4
SYSCON
TL1406
SRV_RDY
S_DT_OUT
S_DT_IN
S_CLK
SRV_CS
SRV_RST
TO
SYSCON
EEP_IN
EEP_DT_OUT
EEP_DT_CLK
R1417
100
EEPROM_CS
3
TO MAIN IF
CN105
2
SRV_TX
SRV_RX
VPPD
DRST
TO REG
D_GAIN
DRUM_PWR
CAP_PWR
DRUM_ERR
CAP_ERR
TO MDA
CAP_ERR
DRUM_ERR
CAP_PWR
DRUM_PWR
DRUM_REF
CAP_REF
CAP_FG
1
DRUM_PG
DRUM_FG
CAP_BRK
LD_ON
CAP_RVS
DRUM_BRK
MDA_PS
LD_FWD
LD_REV
NOTE : The parts with marked ( ) is not used.
A
B
TSR
FRP
SPA
SRV_TRK
HID
SRV_CS
R1414
R1413
R1412
R1411
3.3k
3.3k
3.3k
3.3k
DRUM_REF
CAP_REF
C1415
C1414
C1413
C1412
0.022
0.022
0.022
0.022
TL1405
SYS_CLK
RXD
TXD
NC
MIC_SDA
MIC_CTL
MIC_SCL
EEP_READ
EEP_WRITE
EEP_CLK
EEP_CS
R1424
C1404
0.1
EEP_SEL
100K
Vdd
Vss
CAM_VD
NC
NC
NC
UPD703040YF-M12
TAPE_LED
NC
NC
UPD70F3040YFM12
NC
MDA_PS
DRUM_BRK
CAP_RVS
CAP_BRK
LD_ON
D_GAIN
LD_FWD
LD_REV
CAM0
CAM1
CAM2
REC_SAFE
HID
DIN_L
NC
TL1419
XI164SEL
XI164SEL
VDD
VSS
REEL_ON
TL1401
KENTO1
KENTO2
TL1402
HID3
TESTDA0
TL1403
TL1418
FFREWH
VPPD
DRST
C
D
NOTES :
For the destination of each signal and further line connections that are cut off from
this diagram , refer to "4.1 BOARD INTERCONNECTIONS".
When ordering parts , be sure to order according to the Part Number indicated in the Parts List.
C1407
0.1
NC
NC
NC
NC
NC
NC
NC
NC
NC
NC
BCID3
BCID2
BCID1
IC1401
DEW_SENS
E_SENS
S_SENS
NC
NC
NC
NC
CAP_FG
DRUM_FG
SRVTRK
SPA
NC
NC
NC
NC
FRP
TSR
S_REEL
T_REEL
VSS
VDD
NC
C1406
NC
0.1
OUTV
NC
DRUM_PG
DRUM_FG
MSELECT
NC
NC
NC
C1405
R1401
1M
0.1
TESTDA1
X1401
TL1404
NAX0204-001X
C1416
C1401
C1402
0.1
15p
15p
R1403
10K
R1402
1k
E
4-9
4-10
TREEL_IN
SREEL_IN
TL1417
TSR
TL1416
FRP
TL1415
SPA
TL1414
SRV_TRK
TAPE_LED
Q1403
UMC3N-W
REEL_VCC
Q1402
UMC3N-W
R1423
82
Q1401
DTA114EE-X
RA1401
47k
R1404
4.7k
y10269001a_rev0
F
G
TO REG
GND
REG_3V
M_REG4.8
M_UNREG
TO SYSCON
CAS_SW
TO MAIN IF
CAS_SW
M_UNREG
CN113
M_REG4.8
REG_3V
TO MDA
GND
TREEL_IN
SREEL_IN
TO MAIN IF
TAPE_LED
CN113
TO MDA
REEL_VCC
S_SENS
E_SENS
DEW_SENS
TO MAIN IF
MIC3
CN113
MIC2
MIC1
REC_SAFE
TO MAIN IF
CN111
CAM_SW_A
CAM_SW_B
CAM_SW_C
TO PRE/REC
RECH
PBH
HID3
MONI_CHG
TO
DVMAIN
DV_RST
CLK27SEL
DV_WAIT
DWE
DALE
DRWSEL
DRE
ADDT00
ADDT01
ADDT02
ADDT03
ADDT04
ADDT05
ADDT06
ADDT07
ADDT08
ADDT09
ADDT10
ADDT11
ADDT12
ADDT13
ADDT14
ADDT15
H

Hide quick links:

Advertisement

Table of Contents
loading
Need help?

Need help?

Do you have a question about the GR-DVL145EG and is the answer not in the manual?

Table of Contents