Board Interconnections - Jvc Gr-Dvl145Eg Schematic Diagrams

Digital video camera
Hide thumbs Also See for GR-DVL145EG:
Table of Contents

Advertisement

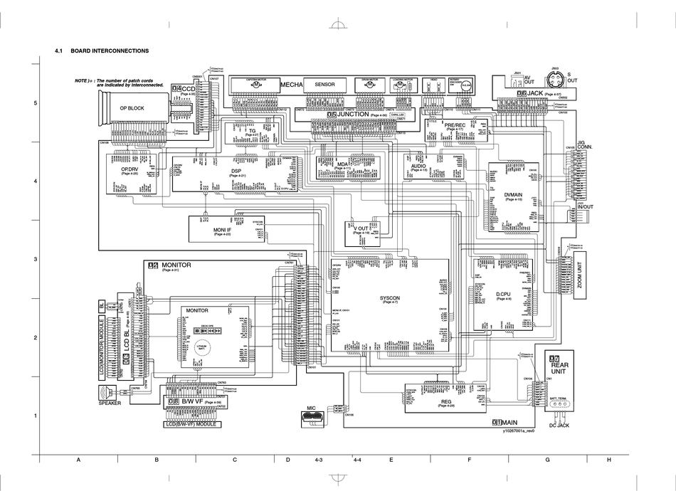
4.1

BOARD INTERCONNECTIONS

NOTE )
: The number of patch cords
are indicated by interconnected.
5
OP BLOCK
CN108
REG
OP.DRV
GND
M_REG4.8
(Page 4-25)
REG_4.8V
REG_3V
4
3
0 2
BL_GND
TL7503
BL_GND
LCD_CTL
HV
BL_4.8V
BL_GND
BL_4.8V
NC
TL7504
NC/A_REG_3V
VGL
VGL
VSS
VSS
STV1
STV1
UD
UD
CPV
CPV
OEV
OEV
STV2
STV2
LCD_VDD/VDD
2
VDD
VGH
VGH
LCD_COM
VCOM
LCD_VEE
VEE
STH2
STH2
LCD_RVS
RL
VB
VB
MON_R
R
MON_G
G
MON_B
B
GND
SIG_GND
GND
CLK3
CLK3
CLK2
CLK2
CLK1
CLK1
Q2H
Q2H
OEH
OEH
STH1
STH1
CN765
SPK-
SPK+
SPEAKER
1
A
B
YTU94074-20
YTU94077-20
CN5001
CN107
CAPSTAN MOTOR
V1
MECHA
M
V2
0 4
CCD
V3
V4
NC/GND
(Page 4-35)
CCD +15V
CCD +15V
GND
GND
GND
CCD_OUT
CN112
GND
GND
GND
GND
RG
H1
H2
CCD -7.0V
SUB
TG
YTU94074-22
YTU94077-22
(Page 4-27)
DVMAIN
OP.DRV
CAM_VD
CLK4M5
DSP
IRIS_PWM
H_OFFSET
H_GAIN
(Page 4-21)
M_VCOCTL
PBVCOCTL
D.CPU
SYSCON
VF_LCD
MONI IF
CN101
LCD_R
(Page 4-23)
LCD_G
LCD_B
BW_Y
CN761
MONITOR
(Page 4-31)
MONITOR
BL_4.8V
VGL
MONI_SW
LCD_RST
VSS
HRP
STV1
VDCVF
UD
DECK OPE
HDCVF
CPV
LCD_R
OEV
LCD_G
STV2
LCD_B
VDD
REV_SW
VGH
BW_Y
LCD_COM
VF_LCD
LCD_VEE
STH2
LCD_RVS
VB
MON_R
LITHIUM
GND
MON_G
BATT.
MON_B
REG_15V
CLK3
REG_-15V
CLK2
REG_12V
CLK1
REG_4.8V
Q2H
VFREG4.8
OEH
REG_3V
STH1
M_REG4.8
CN763
YTU94074-20
YTU94077-20
CN721
0 8
B/W VF
(Page 4-39)
CN722
LCD(B/W-VF) MODULE
C
D
DRUM MOTOR
LOADING MOTOR
M
M
SENSOR
CN572
CN573
CN574
JUNCTION
0
5
(Page 4-36)
CHRG_LED
CN571
CN113
TDO
TMS
TDB
OUTV
MDA
OUTH
AUDIO
DCI[0-3]
(Page 4-11)
DYI[0-3]
(Page 4-13)
INV
INH
DCO[0-3]
DYO[0-3]
FSPLLCTL
PBPLLCTL
TCMK
TRST
CAM_VD
V OUT
REG
(Page 4-19)
REG_4.8V
GND
YTU94105-40
YTU94077-40
OP.DRV
M_RVS
LITHIUM
DATA_OUT
KEY_A
CLK_OUT
HALL_AD
VFREG4.8
IRIS_O/C
GND
F/Z_CS
VF_LCD
F/Z_RST
MONI_SW
REG_15V
GND
CN108
REG_-15V
REG_-15V
Z_SENS
F_SENS
LCD_RST
REG_12V
SYSCON
REG_4.8V
REG_4.8V
(Page 4-7)
SPK+
SPK-
GND
MONI IF, CN101
REG_3V
HRP
VF_LCD
GND
VDCVF
CN101
HDCVF
GND
REV_SW
LCD_R
LCD_RST
M_RVS
GND
LCD_CTL
LCD_G
MONI_SW
GND
KEY_A
LCD_B
GND
REV_SW
M_REG4.8
M_REG4.8
LCD_CTL
BL_GND/GND
BL_GND/GND
BL_GND/GND
BL_GND/GND
BL_GND/GND
BW_Y
CN101
SYSCON
CHRG_EVR
I_MTR
V_BATT
AREG_SO
AREG_CLK
REG_CS
VF_CTL
INT_MIC/R
MIC
IM_GND
INT_MIC/L
CN106
E
4-3
4-4
J503
J501
AV
4
HEAD
ROTARY
OUT
ENCODER
2
SW
R.E.SW
6
0 6
JACK
(Page 4-37)
YTU94074-20
YTU94077-20
CN110
CN111
PRE/REC
REG
GND
(Page 4-17)
REG_4.8V
REG_3V
REG_2.5V
DVMAIN
AIMCK
AILRCK
AIBCK
AODAT
AIDAT
CN105
AUDIO
AODAT
FS_PLL
AIDAT
MAIN_VCO
AIMCK
PB_CLK
AIBCK
DISCRI
AILRCK
TG
CLK27
DVMAIN
DSP
J101
(Page 4-15)
TDB
TPA+
INV
TPA-
INH
TPB+
OUTV
TPB-
OUTH
DCO[0-3]
DYO[0-3]
REG
DCI[0-3]
DYI[0-3]
REG_3V
FSPLLCTL
REG_2.5V
M_VCOCTL
REG_1.8V
PBVCOCTL
PBPLLCTL
GND
TDO
TMS
TCMK
TRST
PRE/REC
DSP
HID1
CAM_VD
RECH
PBH
AUDIO
HID3
DATA_OUT
MONI_CHG
CLK_OUT
SYSCON
BUZZER
SRV_RDY
S_MUTE
S_DT_OUT
DVMAIN
A_MUTE
S_DT_IN
TSR
PD_L
S_CLK
FRP
D.CPU
AUDIO_CS
SRV_CS
SPA
SRV_RST
SRV_TRK
EEP_IN
(Page 4-9)
HID1
EEP_DT_OUT
OUTV
EEP_DT_CLK
DV_RST
EEPROM_CS
CLK27SEL
DV_WAIT
DWE
CN103
DALE
DRWSEL
S_DET
DRE
IR_RMC
ADDT[00-15]
IR_AMP
IR_OUT
CN111
P_DET
CAM_SW_A
CAM_SW_B
CAM_SW_C
CN105
CJIG_RST
AL_3VSYS
VPPC
IF_TX
JLIP_TX
JLIP_RX
YTU94074-10
YTU94077-10
0 7
REAR
UNIT
CN104
CN1
NC/B_SEL
BATT_+
CN105
BATT_+
I_MTR
BATT_CHK
CJIG_RST
ADP_DC
ADP_DC
CN104
BATT_CHK
ADP_H
BATT_TERM.
BATT_+
T_BATT
REG
ADP_DC
GND
+
GND
GND
(Page 4-29)
0 1
MAIN
DC JACK
y10267001a_rev0
F
G
S
3
OUT
1
5
CN502
CN103
JIG
CONN.
CN105
VPPC
REG_3V
SRV_TX
CJIG_RST
IF_TX
I_MTR
FS_PLL
ATFI
MAIN_VCO
ENV_OUT
PB_CLK
HID1
GND
JLIP_TX
JLIP_RX
SRV_RX
VPPD
DRST
DISCRI
AL_3VSYS
J101
IN/OUT
GND
TPB-
TPB+
TPA-
TPA+
GND
YTU94074-15
YTU94077-15
ZOOM_SW
GND
GND
FOCUS_SW
PHOTO_SW
MENU_P_A
MENU_P_B
MENU_SET
DIAL_PB
DIAL_OFF
DIAL_AUTO
DIAL_MANU
POW_LED
TRIG_SW
REG_3V
T
-
H

Hide quick links:

Advertisement

Table of Contents
loading
Need help?

Need help?

Do you have a question about the GR-DVL145EG and is the answer not in the manual?

Table of Contents