Ladder Wiring Diagram - Kenmore K90-150 Owner's Manual

Gas-fired direct vent condensing hot water boiler
Hide thumbs Also See for K90-150:
Table of Contents

Advertisement

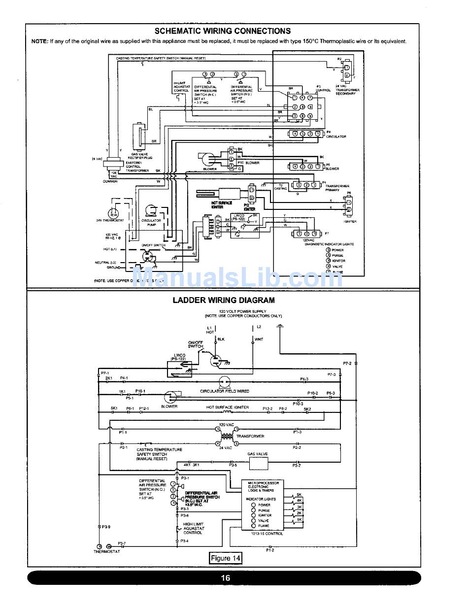
SCHEMATIC WIRING CONNECTIONS
NOTE: If any of the original wire as supplied with this appliance must be replaced, it must be replaced with type 150°C Thermoplastic wire or its equivalent.
.%
24 VA¢
SR
PC_3 l _Ct
_SFORM_R
SECONE_RY
W
BK P_
TO
I_N_ORM_R
G
F_J_RY
p6
p_
{_
pURCta
(NOTE: USE COP_ER COttOU_ORS
ONLYI
LADDER WIRING DIAGRAM
120 VOLT POWER SUPPLy
(NOTE: USE COPPER
COI_DUCTORS
ONLy]
H%TI
C_N/OF F
8LK
SWITCH
LWCO
_-1
CASTING TEMpERATLJR E
/
SAFE_"
SWITCH
(MANtJAL RESE_
tl
4K1
3K1
fl
DIFFERENTIAL
AIR PRESSLJRE
O_
NWITCH (NO)
S_T AT
TNERMOSTAT
2)
CIRCULATOR
FIELD WIRED
HOT SURFACE
IGNITE R
P12. 2
p6-2
P7-2
_7-3
p4-3
p10-2
P5-3
J;
P10-3
5K2
"
I
120 VAC
SFORM_R
GAS VALVE
II
]_
I
I
{(
P3"5
I
I
P3-2
AIR
LC_IC & riMERS
: P3.3
O
Pt/RGE
HIGH LIN_T
O
FLAME
AQU_STAT
CONTROL
1013 10 CONTROL
: P34

Advertisement

Table of Contents
loading
Need help?

Need help?

Do you have a question about the K90-150 and is the answer not in the manual?

This manual is also suitable for:

K90-125K90-200K90-175

Table of Contents