Kenmore 229.960330 Owner's Manual page 17

Continuous pilot/electronic intermittent ignition gas-fired cast iron steam boiler
Table of Contents

Advertisement

I_--
WIRE
NUT
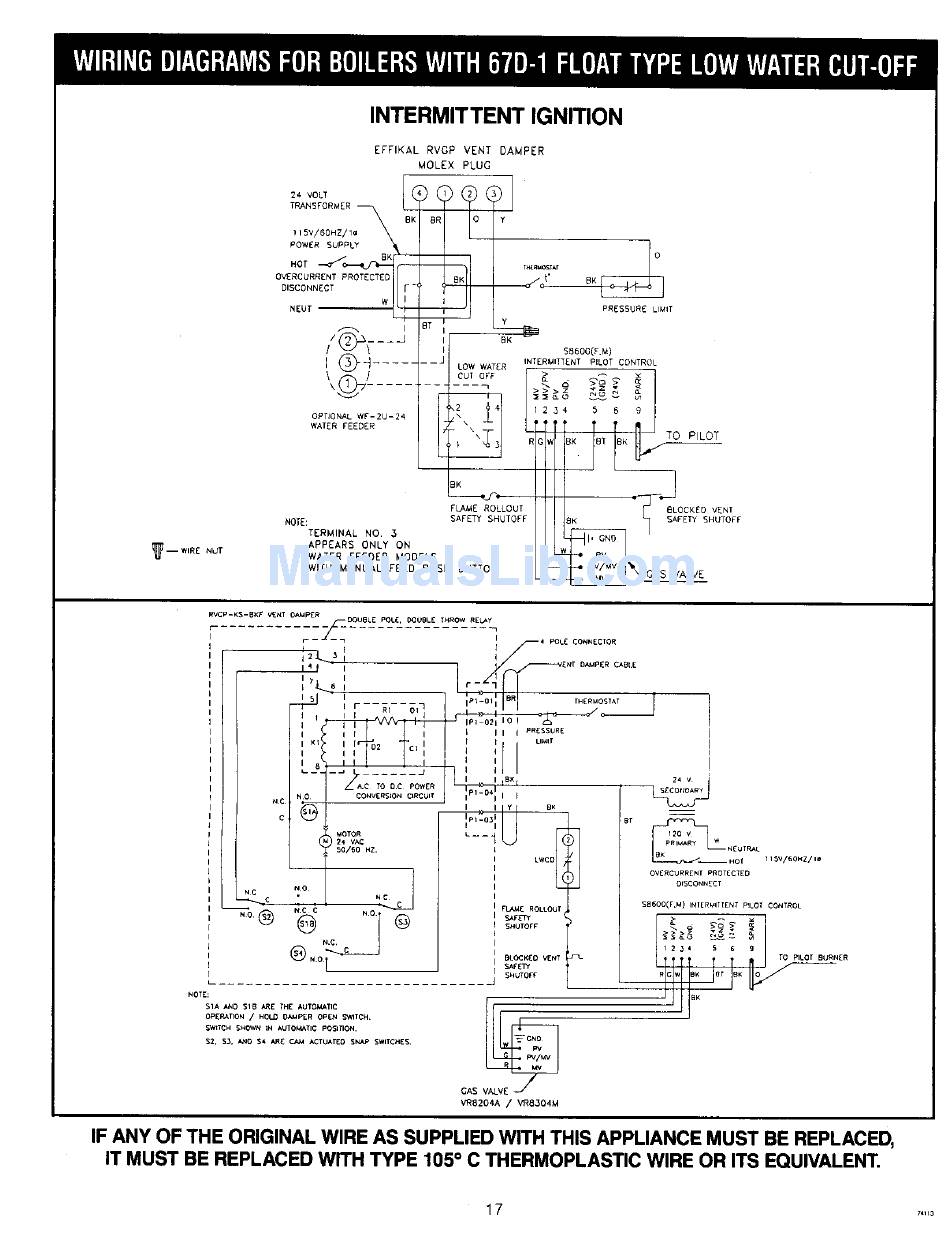
INTERMITTENT IGNITION
24
VOLT
TRANSFORMER
115V/BOHZ/I_
%
POWER
SUPPLY
.oT-_Jo-. _
0V£RCURRENT
PROTECTED
DISCONNECT
W
NEUT
\
)
\(_
.....
OPTIONAL WF-2U-24
WAFER FEEDER
NOTE:
TERMINAL
NO. 3
APPEARS
ONLY
ON
WATER
FEEDER
MODELS
WITH MANUAL
FEED
PUSH
BUTTON
EFFIKAL
RVGP
VENT
DAMPER
MOLEX
PLUG
pR_SSURC
LIMIT
FLAME
ROLLOUI
T
GAS VALVE
RVCp-KS-BKF
V,ENT O_IpzR
"
i
_
ZNr
DAtaPER
C_.81E
I 7
I
I r
_
_6
I
--
is
i ......
'p._L"
o, 1
r.ER'_OS,^T
Kt
r
r
_
Ll_Ir
°,"
,'
--
i
Y
BK
_
o D
,°'-°",1
I
S2j'a-_
( _°,fv°_
_--i L#
I ;2_;, I.
50/60
HZ.
8K
N_UIRAL
LWC0
_
_HO
T
115'V/60HZ/
II_
NC
N0
Nj
.-%
.o1 o
kOTD
SlA
A_O
SIB
_g
THE AUT0_TIC
OPg_TrON
/
HIN_
_I_R
OPEN NTCH
S,N_TCH SHNH
IN _OMATIC
POSmI_.
_FFPr
5NUIOFF
BLOCKED
_T
SV_"ET_
SHUTOFF
cAs
VRB204A
/
VR8304M
OV£RCURRENI
PROT[CTED
DISCORNECT
S8600(F,M)
INI[RUlTT[N_
PILOI
CONTROL
>>>Z
_"
N
_.
1234
S
6
g
T
TO pILOt
BURN£R
IF ANY OF THE ORIGINAL WIRE AS SUPPLIED WITH THIS APPLIANCE MUST BE REPLACED,
IT MUST BE REPLACED WITH TYPE 105 ° C THERMOPLASTIC
WIRE OR ITS EQUIVALENT.
1 7
741_3

Hide quick links:

Advertisement

Table of Contents
loading
Need help?

Need help?

Do you have a question about the 229.960330 and is the answer not in the manual?

Table of Contents