DISHWASHER MAINTENANCE AND CARE
User-Maintenance Instructions
Cleaning the Exterior
Clean the exterior of the dishwasher with only a soft, damp cloth and mild detergent. If your dishwasher has a stainless steel exterior, it may have a coating that is resistant to fingerprints. Avoid using abrasive cleaning products on the exterior of the dishwasher.
Cleaning and Maintaining the Interior
Many detergents may leave white spots or a white residue on dishware and on the interior of the dishwasher. Over time this residue can become unsightly and could affect dishwasher performance. Use of a dishwasher cleaning product such as affresh®† Dishwasher Cleaner can help to remove the residue. Monthly use of affresh®† Dishwasher Cleaner is recommended to help maintain the dishwasher. Follow package directions.
Another method to remove white residue is to use a vinegar rinse. However, vinegar is an acid and using it too often could damage your dishwasher.
Place (do not pour) 2 cups (500 mL) white vinegar in a glass or dishwasher-safe measuring cup on the bottom rack. Run the dishwasher through a complete washing cycle using an air-dry or an energy-saving dry option. Do not use detergent. Vinegar will mix with the wash water.
NOTE: We recommend the use of high-quality, premeasured detergent tablets or packs and the use of rinse aid for dishwasher cleaning and daily care.
If you have a drain air gap, check and clean it if the dishwasher is not draining well.
![]()
To Reduce Risk of Property Damage During Vacation or Extended Time Without Use
- When you will not be using the dishwasher during the summer months, turn off the water and power supply to the dishwasher.
- Make sure the water supply lines are protected against freezing conditions. Ice formations in the supply lines can increase water pressure and cause damage to your dishwasher or home. Damage from freezing is not covered by the warranty.
- When storing your dishwasher in the winter, avoid water damage by having your dishwasher winterized by authorized service personnel.
Cleaning the Filters
It is very easy to remove and maintain the filters. The chart below shows the recommended cleaning frequency.
| Recommended Time Interval to Clean Your Filter |
| Number of loads per week | If you only scrape before loading* | If you scrape and rinse before loading | If you wash before loading |
| 8–12 | Every two months | Every four months | Once per year |
| 4–7 | Every two months | Once per year | Once per year |
| 1–3 | Twice per year | Once per year | Once per year |
*Manufacturer's recommendation: This practice will conserve the water and energy that you would have used to prepare your dishes. This will also save you time and effort.
Very Hard Water
If you have hard water (above 15 grains), clean your filter at least once per month. Building up of white residue on your dishwasher indicates hard water. For tips on removing spots and stains, see the online "Troubleshooting" section.
NOTE: Online references can be found in the Quick Start Guide.
Filter Removal Instructions
- Turn the upper filter assembly 1/4 turn counterclockwise and lift out.
- Separate the upper filter assembly by gently pulling apart.
- Clean the filters as shown.
![Whirlpool - WDF520PADM9 - Cleaning - Step 1 Cleaning - Step 1]()
Cleaning Instructions
![]()
Do not use wire brush, scouring pad, etc., as they may damage the filters.
Rinse filter under running water until most soils are removed. If you have hard-to-remove soils or calcium deposits from hard water, a soft brush may be required.
![Whirlpool - WDF520PADM9 - Cleaning - Step 2 Cleaning - Step 2]()
REQUIREMENTS
Gather the recommended tools and parts before starting installation. Read and follow the instructions provided with any tools listed here.
Tools Needed:
![]()
Other Useful Items You May Need:
![]()
Parts Supplied
![]()
Make sure all these parts are included in the literature package.
![]()
Optional Accessory Parts Available:
Moisture Barrier Tape
NOTE: Moisture barrier tape is recommended if installing a dishwasher under a wooden countertop.
![]()
Side Panel Kit
For enclosing the side of the dishwasher when installing it at the end of your cabinetry
(Whirlpool part number varies with color.)
![]()
Call us at our toll-free number or visit our website listed on the Quick Start Guide for optional accessory part information.
First-Time Installations
Check local codes. Check existing electrical supply. See the "Electrical Requirements" section. It is recommended that electrical connections be made by a licensed electrical installer.
Additional Tools Needed:
![]()
Additional Parts Needed (not provided):
3/8" (9.5 mm) Compression x 3/4" (19 mm) Hose Fitting with rubber seal and 90° elbow
(required to properly connect household water line to the dishwasher)
![]()
Household Wiring (Metallic) Strain Relief to fit 7/8" (22 mm) hole (required to properly secure household wiring to the dishwasher terminal box)
NOTE: Use only: Straight: Whirlpool Part Number 4317824, 90°: Whirlpool Part Number W10278923RP
![]()
Twist-On Wire Connectors
![]()
NOTES:
- Confirm proper size for connecting your gauge of household wiring to the 16- gauge wiring in the dishwasher.
- Use only: Straight: Whirlpool Part Number 4317824, 90°: Whirlpool Part Number W10278923RP
Copper Tubing (3/8" [9.5 mm] O.D. suggested) or Flexible Braided Water Supply Line Kit.
![]()
Screw-Type Clamps 1 1/2"– 2" (38 mm–50 mm) (3 maximum)
![]()
Optional – Longer Drain Hose Maximum length 12 ft. (3.7 m)
NOTE: Must meet AHAM/IAPMO test standards, fit 1" (25 mm) drain connection, and be resistant to heat and detergent.
![]()
NOTE: Be sure to purchase only Whirlpool factory-certified parts and accessories for your appliance. Your installation may require additional parts. To order, refer to the contact information referenced in your Quick Start Guide.
NOTE: If using a flexible braided hose, replace inlet hose after 5 years to reduce the risk of hose failure. Record hose installation or replacement dates on the hose for future reference.
For Direct Wire
![]()
Cabinet Grommet
For 1 1/2" (38 mm) hole in cabinet
NOTE: Required for metal cabinets
For Power Cord
![]()
Power Cord Kit
Kit typically includes power cord, metallic strain relief, grommet, and twist-on wire connectors (Straight: Whirlpool Part Number 4317824, 90°: Whirlpool Part Number W10278923RP). For proper installation, refer to the installation instructions provided with the kit.
NOTE: Be sure to purchase only Whirlpool factory-certified parts and accessories for your appliance. Your installation may require additional parts. To order, refer to the contact information referenced in your Quick Start Guide.
Location Requirements
Dishwasher must be fully enclosed (top, sides, back, and floor) upon installation. A side panel kit is available from your dealer for installing your dishwasher at the end of your cabinetry.
An optional moisture barrier accessory is also available for installing underneath a wooden countertop.
Check location where dishwasher will be installed. The location must provide:
- Convenient access for loading and unloading dishes. Corner locations require a 2" (51 mm) minimum clearance between the side of the dishwasher door and the wall or cabinet.
- Easy access to water, electricity, and drain:
- Grounded electrical supply is required.
- This dishwasher has a water-heating feature and also requires a connection to a hot water supply line.
- Make sure pipes, wires, and drain hose are within the shaded area shown in the "Cabinet Opening Dimensions" section.
- Do not run drain lines, water lines, or electrical wiring where they can interfere with or contact dishwasher motor or legs.
- Shelter dishwasher and water lines leading to dishwasher against freezing. Damage from freezing is not covered by the warranty.
NOTE: If dishwasher will be left unused for a period of time or in a location where it may be subject to freezing, have it winterized by authorized service personnel. - If installed in new construction, flush the water supply line of debris before connecting it to the fill valve. If it is not flushed, debris from the water supply could plug the fill valve screen.
- A square opening for proper operation and appearance.
- The cabinet front to be perpendicular to floor.
- A level floor.
Helpful Hint: If floor at front of opening is not level with floor at rear of opening, shims may be used to level dishwasher.
NOTE: To avoid shifting during dishwasher operation, shims must be securely attached to the floor.
- The location where the dishwasher will be installed must provide clearance between motor and flooring. Motor should not touch the floor.
- Do not install dishwasher over carpeted flooring.
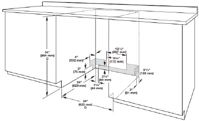
Cabinet Opening Dimensions
Clearances
Check that all surfaces have no protrusions that would prohibit dishwasher installation.
![Whirlpool - WDF520PADM9 - Cabinet Opening Dimensions Cabinet Opening Dimensions]()
- Measured from the lowest point on the underside of the countertop. May be reduced to 33 1/2" (851 mm) by removing the wheels and perforated area of insulation (blanket) on dishwasher.
- Minimum, measured from narrowest point of opening.
NOTE: Shaded areas of cabinet walls show where utility connections may be installed.
Drain Requirements
- A new drain hose is supplied with your dishwasher. If drain hose is not long enough, use a new drain hose with a maximum length of 12 ft. (3.7 m) that meets all current AHAM/IAPMO test standards, is resistant to heat and detergent, and fits the 1" (25 mm) drain connector of the dishwasher.
NOTE: Do not connect multiple drain hoses together. - Make sure to connect drain hose to waste tee or disposer inlet above drain trap in house plumbing and 20" (508 mm) minimum above the floor. It is recommended that the drain hose either be looped up and securely fastened to the underside of the counter or be connected to an air gap.
- Make sure to use an air gap if the drain hose is connected to house plumbing lower than 20" (508 mm) above subfloor or floor.
![Whirlpool - WDF520PADM9 - Drain Requirements Drain Requirements]()
- If required, the air gap should be installed in accordance with the air gap installation instructions. When you are connecting the air gap, a rubber hose (not provided) will be needed to connect to the waste tee or disposer inlet.
- Use 1/2" (12.7 mm) minimum I.D. drain line fittings.
Water Supply Requirements
- This dishwasher has a water heating feature and also requires a connection to a hot water supply line.
- A hot water line with 20 to 120 psi (138 to 862 kPa) water pressure can be verified by a licensed plumber.
- 120°F (49°C) water at dishwasher
- 3/8" (9.5 mm) O.D. copper tubing with compression fitting or flexible braided water supply line
NOTE: 1/2" (12.7 mm) minimum plastic tubing is not recommended. - A 90° elbow with 3/4" (19 mm) hose connection with rubber washer
- Do not solder within 6" (152 mm) of the water inlet valve.
- If installed in new construction, make sure the house water supply lines have been flushed prior to connecting the dishwasher to remove any debris that may exist in the supply line.
NOTE: If replacing an existing dishwasher, it is recommended to install a new water line and drain hose (supplied) with the new dishwasher.
Electrical Requirements
Be sure that the electrical connection and wire size are adequate and in conformance with the National Electrical Code, ANSI/NFPA 70 – latest edition, and all local codes and ordinances.
For a fee, a copy of the above code standards can be obtained from:
National Fire Protection Association
1 Batterymarch Park
Quincy, MA 02169-7471
You Must Have:
- 120 V, 60 Hz, AC-only, 15 A or 20 A, fused electrical supply.
- Copper wire only.
- A maximum of 2 field wiring supply conductors (12 AWG largest size) plus 1 grounding conductor are permitted in the terminal box.
We Recommend:
- time-delay fuse or circuit breaker.
- separate circuit.
If Connecting Dishwasher with a Power Cord:
- Use a UL-listed power cord kit marked for use with dishwasher. See the "Tools and Parts" section for part details.
![]()
- Plug into a grounded 3-prong outlet. Outlet must meet all local codes and ordinances.
![]()
If Connecting Dishwasher with Direct Wiring:
- Use flexible, armored, or nonmetallic sheathed copper wire with grounding wire that meets the wiring requirements for your home and local codes and ordinances.
![]()
- Use a UL-listed/CSA-approved metallic strain relief.
INSTALLATION
![]()
Tip Over Hazard
Do not use dishwasher until completely installed.
Do not push down on open door.
Doing so can result in serious injury or cuts.
![]()
You Need To:
- Slowly open dishwasher door while someone grasps the rear of the dishwasher. Remove shipping materials and drain hose. Close dishwasher door until latched.
NOTE: Each dishwasher is tested at the factory and may contain some residual water in the tub as a result of the test. - Observe all governing codes and ordinances.
- Install this dishwasher as specified in these instructions.
- Installation should be performed by a qualified service technician.
- The dishwasher must be installed to meet all electrical and plumbing national and local codes and ordinances.
- Care shall be exercised when the appliance is installed or removed to reduce the likelihood of damage to the power cord.
![]()
To reduce the risk of electric shock, fire, or injury to persons, the installer must ensure that the dishwasher is completely enclosed at the time of installation.
Before You Begin
![]()
Electrical Shock Hazard
Disconnect electrical power at the fuse box or circuit breaker box before installing appliance.
Failure to do so can result in death or electrical shock.
- Disconnect power
Disconnect electrical power at the fuse box or circuit breaker box before installing dishwasher. - Shut off water supply
Shut off water supply to the dishwasher.
Prepare Cabinet Opening – New Utilities
- Drill hole locations – new construction
The power-supply receptacle for the appliance shall be installed in a cabinet or on a wall adjacent to the undercounter space in which the appliance is to be installed.
NOTE: Refer to the "Cabinet Opening Dimensions" section for the correct hole placement and dimensions of the shaded area.
Drill a 1 1/2" (38 mm) drain hole in the side or rear of cabinet, depending on the location of the drain hose routing and drain hose connection location.
Drill a 1/2" (12.7 mm) water supply hose hole in the side or rear of cabinet, depending on location of water supply routing and connection location.
Drill a 1 1/2" (38 mm) electrical conduit hole in the right-hand side or rear of the cabinet.
![Whirlpool - WDF520PADM9 - Installation - Step 1 - Prepare Cabinet Opening Installation - Step 1 - Prepare Cabinet Opening]()
- Sand holes smooth
Wood cabinet: Sand the hole until smooth.
Metal cabinet: Cover edges of hole with grommet included with power cord kit. See the "Tools and Parts" section for part details.
Helpful Tip: Wiring the dishwasher will be easier if you route the cable into the cabinet opening from the right-hand side.
![Whirlpool - WDF520PADM9 - Installation - Step 2 Installation - Step 2]()
Install Optional Moisture Barrier
(Recommended for Wood Countertops)
Moisture barrier/Wood shims
Make sure the area under the cabinet is clean and dry for installation of the moisture barrier. Remove the backing of the moisture barrier and apply to underside of the countertop along the front edge of the counter.
NOTE: Install wood shims if side anchoring and the gap between sides of the dishwasher are greater than 1/2" (12.7 mm) on each side or are greater than the length of the anchor screws.
![Whirlpool - WDF520PADM9 - Install Optional Moisture Barrier - Step 1 Install Optional Moisture Barrier - Step 1]()
- Built-up floors – add shims as needed
Built-up floors: If the kitchen floor is higher than the cabinet opening's floor — for example, the kitchen floor tile does not extend into the cabinet opening — add shims, as needed, in the area shown to bring the dishwasher up to 34" (864 mm) below the countertop.
NOTE: Shims must be securely attached to floor to avoid movement when the dishwasher is in use.
![Whirlpool - WDF520PADM9 - Install Optional Moisture Barrier - Step 2 Install Optional Moisture Barrier - Step 2]()
- If installing into a 33 1/2" (851 mm) opening
Cut insulation blanket along perforation for cabinet opening height of 33 1/2" (851 mm). For other cabinet opening heights, do not cut the insulation blanket.
![]()
Electrical Connection
- For Direct Wire, begin with step 7
- For Power Cord, wait until step 22
- Direct wire – route cable
If installing with direct wire, route the cable as shown.
Route cable from power supply through cabinet hole. (Cable must extend to the right-front side of cabinet opening.) Tape cable to the floor in area shown. This will prohibit cable from moving when dishwasher is moved into cabinet opening.
NOTE: If removing a previous dishwasher with a power cord, you will need to transfer the power cord to the new dishwasher.
![Whirlpool - WDF520PADM9 - Installation - Step 3 - Electrical Connection Installation - Step 3 - Electrical Connection]()
Prepare Dishwasher
![]()
Tip Over Hazard
Do not use dishwasher until completely installed.
Do not push down on open door.
Doing so can result in serious injury or cuts.
![]()
![]()
Excessive Weight Hazard
Use two or more people to move and install or uninstall appliance.
Failure to do so can result in back or other injury.
- Put dishwasher on its back
Helpful Tip: Place cardboard under dishwasher until installed in cabinet opening to avoid damaging floor covering.
Using 2 or more people, grasp sides of dishwasher door frame and place the dishwasher on its back.
Do not use the door panel as a worktable without first covering it with a towel to avoid scratching the door panel.
NOTE: On some models, once the dishwasher is on its back, pull on the door handle to remove it from the access panel.
![]()
Remove Access Panel
- For Plastic Access Panels, go to step 9
- For Metal Access Panels, go to step 10
- Plastic panel
Using a flat-blade screwdriver, turn the plastic fasteners 1/4 turn counterclockwise to unlock them. Go to step 12.
![Whirlpool - WDF520PADM9 - Installation - Step 4 - Remove Access Panel Installation - Step 4 - Remove Access Panel]()
- Metal panel
Using a 1/4" (6.35 mm) nut driver or Phillips screwdriver, remove 2 screws attaching access panel to dishwasher.
![Whirlpool - WDF520PADM9 - Installation - Step 5 Installation - Step 5]()
- Measure cabinet opening
Measure height of cabinet opening from underside of countertop to floor where dishwasher will be installed. Be sure to measure the lowest point on the underside of the countertop and the highest point on the floor.
| Dishwasher Height Adjustment Chart |
| Cabinet-opening height | Front legs height A | Rear legs height B |
| 33 1/2" (851 mm) | 3/8" (9.8 mm) | Remove legs and spacers. |
| 34" (864 mm) | 7/8" (22 mm) | 1" (25.4 mm) |
| 34 1/2" (876 mm) | 1 1/8" (28.8 mm) | 1 1/4" (31.3 mm) |
Front legs – A
![]()
Rear legs – B
![Whirlpool - WDF520PADM9 - Installation - Step 6 Installation - Step 6]()
Adjust both front and back leveling legs to the same height.
NOTE: If the minimum cabinet opening height is less than 33 7/8" (860 mm), the rear leveling legs and spacers can be removed for additional clearance. This will allow the dishwasher to fit into a 33 1/2" (851 mm) high cabinet opening, but the dishwasher will be more difficult to move. (Measurements are approximate. Rear and front leveling legs are preset at the factory for 34 1/2" [876 mm].)
- Adjust leveling legs
Refer to the "Dishwasher Height Adjustment Chart" for height of leveling legs needed for your cabinet opening.
![Whirlpool - WDF520PADM9 - Installation - Step 7 Installation - Step 7]()
- Remove plastic rail cover
Remove and discard the plastic rail cover on each side of the dishwasher frame. To remove the plastic rail cover, push upward and back to unsnap it from the dishwasher frame.
![Whirlpool - WDF520PADM9 - Installation - Step 8 Installation - Step 8]()
Connect Water Line to Fill Valve
- For Copper Line, begin with step 14
- For Flexible Line, begin with step 16
- Copper water line
If using copper tubing, measure overall length of copper tubing required to reach the water supply, cut to length, and attach with compression fittings.
![]()
- Slide nut and ferrule onto tubing (copper tubing only)
Copper tubing only: Put the tubing into the 90° elbow fitting as far as it will go. (The copper tubing bends and kinks easily.) Slide the nut and ferrule forward and start the nut onto the elbow threads.
NOTE: To avoid vibration during operation, route the water supply line so that it does not touch the dishwasher base, frame, or motor. Go to step 18.
![Whirlpool - WDF520PADM9 - Connect Water Line to Fill Valve Connect Water Line to Fill Valve]()
- Flexible line
Flexible braided line: Confirm the flexible braided line is long enough.
![]()
- Add 90° elbow fitting to the water supply line
Get 3/8" (9.5 mm) compression x 3/4" (19 mm) hose fitting with 90° elbow. See the "Tools and Parts" section at the front of the guide for part details and order. Connect the 3/8" (9.5 mm) compression fitting of the 90° elbow fitting to the water supply line. Attach so the 3/4" (19 mm) connection is facing upward as shown above.
![]()
Connect Fill Hose to Fill Valve
- Tighten 90° elbow fitting to valve
Be sure rubber washer is properly seated in fitting. Slide the 3/4" (19 mm) fitting of the 90° elbow up to the valve and hand-tighten to avoid cross-threading. Hand-tighten until the coupling is tight. Using pliers, check the tightness of the coupling. An additional 1/4 to 1/2 turn may be required to seal the rubber gasket. Route fill hose out the rear left side of unit.
![]()
NOTES: - Do not use PTFE plumber's tape with compression fittings.
- Do not overtighten. Damage to the coupling can result.
Drain Hose Connection
- Connect drain hose
Place towel under drain hose to catch any water in drain hose. Place the small (green) drain hose clamp onto the small end of the drain hose. Push the new drain hose into the rubber drain hose connector up to the drain hose stop.
![Whirlpool - WDF520PADM9 - Installation - Step 9 - Drain Hose Connection Installation - Step 9 - Drain Hose Connection]()
- Slide clamp onto connector
Using pliers, squeeze open the small drain hose clamp, and slide it onto the connector between stops.
![Whirlpool - WDF520PADM9 - Installation - Step 10 Installation - Step 10]()
- Hose clamp final position
![Whirlpool - WDF520PADM9 - Installation - Step 11 Installation - Step 11]()
NOTE: Route drain hose out the rear of the dishwasher.
Power Cord Connection
NOTE: If removing a previous dishwasher with a power cord, you will need to transfer the power cord to the new dishwasher.
- Remove terminal box cover
Using a 1/4" hex-head socket, nut driver, or Torx® T20® screwdriver, remove terminal box cover. Retain for later use.
![Whirlpool - WDF520PADM9 - Installation - Step 12 - Power Cord Connection Installation - Step 12 - Power Cord Connection]()
- Install strain relief
Install the metallic strain relief provided in this kit (Straight: Whirlpool Part Number 4317824, 90°: Whirlpool Part Number W10278923RP). Make sure screw heads are facing to the left when tightening conduit nut. Strain relief is provided with the power cord kit.
![Whirlpool - WDF520PADM9 - Installation - Step 13 Installation - Step 13]()
- Power cord – route cord into terminal box
Route cord so that it does not touch dishwasher motor or lower part of dishwasher tub. Pull cord through strain relief in terminal box.
NOTE: A maximum of 2 power cord supply conductors (12 AWG largest size) plus 1 grounding conductor are permitted in the terminal box.
![Whirlpool - WDF520PADM9 - Installation - Step 14 Installation - Step 14]()
![]()
Electrical Shock Hazard
Electrically ground appliance.
Connect ground wire to green ground connector in terminal box.
Do not use an extension cord.
Failure to follow these instructions can result in death, fire, or electrical shock. - Power cord – connect ground wire
Remove the ground connector screw and place it through the ring terminal of the green ground wire of power cord. Reattach and tighten the ground connector screw.
![Whirlpool - WDF520PADM9 - Installation - Step 15 Installation - Step 15]()
- Power cord – connect remaining wires
Select twist-on wire connectors of the proper size provided in this kit (Straight: Whirlpool Part Number 4317824, 90°: Whirlpool Part Number W10278923RP). Connect wires, black to black and white to white, using the twist-on wire connectors.
![Whirlpool - WDF520PADM9 - Installation - Step 16 Installation - Step 16]()
NOTE: Do not pre-twist stranded wire. Twist on wire connector. Gently tug on wires to be sure both are secured.
Wiring configuration
![]()
- Power cord – secure cord in strain relief
Tighten strain relief screws to secure cord.
![Whirlpool - WDF520PADM9 - Installation - Step 17 Installation - Step 17]()
- Power cord – reinstall terminal box cover and wires
Place wires inside terminal box. Insert tabs on left side of cover. Make sure wires are tucked inside the box and not pinched by the cover. Use a 1/4" hex-head socket, nut driver, or Torx® T20® screwdriver, and the screw removed in step 22 to secure the terminal box cover.
If power cord supplied model, remove the first tie strap closest to the plug to maximize the cord length. Do not remove any other tie straps.
NOTE: Route power cord out the rear of the dishwasher. Do not plug cord into an outlet until instructed to do so.
![Whirlpool - WDF520PADM9 - Installation - Step 18 Installation - Step 18]()
Install Door Handle
(on some models)
- Install door handle
![]()
Do not scratch the front panel during this procedure. If door panel has a protective film, peel film back past the point of the handle studs before installing handle. Handle is easiest to install while unit is on its back.
Remove the door handle and hex key from the packaging. Setscrews are already installed in the handle. Place handle on mounting studs with the setscrews facing down. Push the door handle tightly against the door. Insert the short end of the hex key into the setscrews. Tighten the setscrews 1/4 turn past snug.
Retain hex key with Owner's Manual.
![Whirlpool - WDF520PADM9 - Installation - Step 19 - Install Door Handle Installation - Step 19 - Install Door Handle]()
Place Dishwasher in Cabinet
![]()
Excessive Weight Hazard
Use two or more people to move and install or uninstall appliance.
Failure to do so can result in back or other injury.
- Stand dishwasher upright
Using 2 or more people, stand the dishwasher up.
NOTE: Do not install kick plate until instructed to do so.
![]()
If wheels were removed, cover the floor when moving the dishwasher. Slowly move dishwasher completely into cabinet opening. Do not kink or pinch water line, drain hose, power cord, or direct wire between dishwasher and cabinet. Remove cardboard from under dishwasher.
It is all right if dishwasher fits tightly into cabinet opening. Do not remove insulation blanket—the blanket reduces the sound level.
NOTE: Route water supply, drain hose, and power cord out the rear of the dishwasher.
![]()
- Move dishwasher close to cabinet opening
Route the utilities through the holes in the cabinet and pull the slack out at the same time as the dishwasher is pushed into the cabinet.
![]()
- Route power cord.
If using a power cord, make sure to route end through hole in cutout before sliding dishwasher into cabinet opening.
![]()
- Secure installation blanket
NOTE: Make sure insulation blanket is secured at both left and right rear corners before pushing into cabinet opening to keep the blanket from bunching up in a tight-fitting cabinet.
![]()
- Move dishwasher all but 6" (152 mm) into cabinet opening
NOTE: Leave unit about 6" (152 mm) out from cabinet in order to install anchor brackets and adjust door tension if needed.
![]()
- Pull slack from utilities
NOTE: Pull slack out of utilities at the same time the dishwasher is pushed into the cabinet opening to avoid any kinks.
![]()
Choose Anchor Attachment Method
![]()
The dishwasher must be secured to the cabinet as one of the final steps. Prepare the dishwasher for this by attaching the 2 brackets found in the parts bag to the dishwasher.
- For countertops that are wood, laminate, or another similar surface, use Countertop Attachment: go to step 36
- For countertops that are marble, granite, or another hard surface, use Side Attachment: go to step 37
NOTE: If the gap between the top of the door and the underside of the countertop is tight (less than 1/4" [6.35 mm]), we suggest using Side Attachment to keep from scratching the User Interface or console with the anchor screws.
Countertop Attachment:
- Insert bracket
Remove the brackets from the package and insert into the open slots on the left- and right-hand top of the dishwasher collar as shown. Go to step 41.
![]()
Bend tab
Using pliers, bend/twist tab to lock the brackets in place.
Side Attachment:
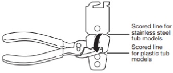
- Break end of bracket
Break off the end of the bracket along the scored line using pliers.
![]()
- Install bracket
Push bracket into slot on the side of dishwasher and bend tab in toward the side of the dishwasher so that it keeps the bracket in place. Repeat this step for the other side of the dishwasher.
NOTE: Install wood shims to the inside of the cabinets if the gap between the sides of the cabinet and the sides of the dishwasher are greater than 1/2" (13 mm) on each side.
NOTE: Do not attach the dishwasher. This will be done later.
![]()
Final Installation Check
- Open and close door
![Whirlpool - WDF520PADM9 - Installation - Step 20 Installation - Step 20]()
- Closes too quickly – decrease spring tension
If the door closes too quickly, decrease the spring tension by moving the spring end toward the front of the dishwasher.
NOTE: Springs should be in the same notches on left and right sides.
![Whirlpool - WDF520PADM9 - Installation - Step 21 Installation - Step 21]()
- Closes too quickly – decrease spring tension
If the door falls open, increase the spring tension by moving the spring end toward the back of the dishwasher.
NOTE: Springs should be in the same notches on left and right sides.
![Whirlpool - WDF520PADM9 - Installation - Step 22 Installation - Step 22]()
- Align front of dishwasher with front of cabinet doors
Align front of dishwasher door panel with front of cabinet doors. You may need to adjust alignment to be even with your cabinets.
![Whirlpool - WDF520PADM9 - Installation - Step 23 Installation - Step 23]()
- Check for plumb and adjust legs if needed
Check that leveling legs are firmly against the floor. Close and latch the door and place level against the front panel. Check that dishwasher is centered from front to back in the opening. If needed, adjust leveling leg until dishwasher is plumb.
Repeat for other side of dishwasher.
Helpful Tip: Push up on front of dishwasher to raise dishwasher off the ground to adjust front legs. With some installations, it may be easier to adjust the front leg using a 3/16" hex head socket or adjustable wrench. If the gap between the top of the door and the underside of the countertop is tight (less than 1/4" [6 mm]), we suggest side anchoring to keep from scratching the control panel or console.
![Whirlpool - WDF520PADM9 - Installation - Step 24 Installation - Step 24]()
Level legs
![Whirlpool - WDF520PADM9 - Installation - Step 25 Installation - Step 25]()
- Check level side to side and adjust legs if needed
Place level against top-front opening of tub. Check that dishwasher is level from side to side. If dishwasher is not level, adjust front legs up or down until dishwasher is level.
![Whirlpool - WDF520PADM9 - Installation - Step 26 Installation - Step 26]()
Secure Dishwasher in Cabinet Opening
- Double-check dishwasher alignment in cabinet opening
Check that dishwasher is still level front to back and side to side in the cabinet opening.
Open dishwasher door and place towel over pump assembly and spray arm of dishwasher. For some models, you may have to remove lower dish rack. This will keep screws from falling into pump area when you are securing dishwasher to countertop or cabinet.
![Whirlpool - WDF520PADM9 - Secure Dishwasher in Cabinet Opening - Step 1 Secure Dishwasher in Cabinet Opening - Step 1]()
- Secure dishwasher
Open dishwasher door to prepare for securing the dishwasher to the countertop or side cabinet.
![Whirlpool - WDF520PADM9 - Secure Dishwasher in Cabinet Opening - Step 2 Secure Dishwasher in Cabinet Opening - Step 2]()
NOTES: - The dishwasher must be secured to keep it from shifting when the door is opened or closed.
- Do not drop screws into bottom of dishwasher.
- Locate brackets installed in the "Choose Anchor Attachment Method" section, either on top or on the sides of the dishwasher.
- If countertop anchoring: Secure dishwasher to the countertop with two #10 x 1/2" Phillips-head screws (included).
- If side anchoring: Drill pilot holes in cabinet to avoid splitting the wood. Secure dishwasher to cabinet with two #10 x 1/2" Phillips-head screws (included). Remove upper rack for easier access.
- Check door clearance
![]()
Check that top of door does not contact screws, brackets, or countertop. If it does, adjust leveling legs or use the side attachment option.
![Whirlpool - WDF520PADM9 - Secure Dishwasher in Cabinet Opening - Step 3 Secure Dishwasher in Cabinet Opening - Step 3]()
- Check inner spacing
Open door and check that space between dishwasher cabinet opening and tub is equal on both sides. If spacing is not equal, loosen bracket screws and shift tub. Tighten bracket screws.
![Whirlpool - WDF520PADM9 - Secure Dishwasher in Cabinet Opening - Step 4 Secure Dishwasher in Cabinet Opening - Step 4]()
Direct Wire Connection
- Remove terminal box cover
Using a 1/4" hex-head socket, nut driver, or Torx® T20® screwdriver, remove terminal box cover. Retain for later use.
![Whirlpool - WDF520PADM9 - Direct Wire Connection - Step 1 Direct Wire Connection - Step 1]()
- Install strain relief
Install a UL-listed/CSA-approved metallic strain relief.
![Whirlpool - WDF520PADM9 - Direct Wire Connection - Step 2 Direct Wire Connection - Step 2]()
- Route cable into terminal box
Route cable so that it does not touch dishwasher motor or lower part of dishwasher tub. Pull cable through UL-listed/ CSA-approved strain relief in terminal box. Strain relief is not supplied with the dishwasher. Owner must purchase a 7/8" (22 mm) screw-in type strain relief.
Select UL-listed/CSA-approved twist-on wire connectors (not included) rated to connect your household wiring to 16-gauge dishwasher wiring.
![Whirlpool - WDF520PADM9 - Direct Wire Connection - Step 3 Direct Wire Connection - Step 3]()
![]()
Electrical Shock Hazard
Electrically ground appliance.
Connect ground wire to green ground connector in terminal box.
Do not use an extension cord.
Failure to follow these instructions can result in death, fire, or electrical shock. - Direct wire – connect ground wire
Form bare ground wire into a U-shaped hook. Wrap ground wire hook clockwise around the ground connector screw and under the washer. Securely tighten ground connector screw.
![Whirlpool - WDF520PADM9 - Direct Wire Connection - Step 4 Direct Wire Connection - Step 4]()
- Direct wire – connect remaining wires
Select UL-listed/CSA-approved twist-on wire connectors of the proper size. Connect wires, black to black and white to white, using the twist-on wire connectors.
![Whirlpool - WDF520PADM9 - Direct Wire Connection - Step 5 Direct Wire Connection - Step 5]()
NOTE: Do not pre-twist stranded wire. Twist on wire connector. Gently tug on wires to be sure both are secured.
Wiring configuration
![]()
- Direct wire – secure cable in strain relief
Tighten strain relief screws to secure cable.
![Whirlpool - WDF520PADM9 - Direct Wire Connection - Step 6 Direct Wire Connection - Step 6]()
- Direct wire – reinstall terminal box cover and wires
Place wires inside terminal box. Insert tabs on left side of cover. Make sure wires are tucked inside box. Close cover ensuring wires are not pinched. Use 1/4" nut driver or Torx® T20® screwdriver and previously removed screw to secure cover.
![Whirlpool - WDF520PADM9 - Direct Wire Connection - Step 7 Direct Wire Connection - Step 7]()
Connect Water Line to House Shutoff Valve
NOTE: If using a flexible braided hose, replace inlet hose after 5 years to reduce the risk of hose failure. Record hose installation or replacement dates on the hose for future reference
- Attach water supply line
Attach the water supply line (copper tubing or flexible braided line) to the hot water line using a connection configuration that is in compliance with local codes and ordinances. The water supply to the dishwasher should have a manual shutoff valve located under the sink.
![]()
Connect Drain Hose
- Connect drain hose
Connect drain hose to waste tee or waste disposer using one of the following options: - Option A: Waste disposer – no air gap
- Option B: No waste disposer – no air gap
- Option C: Waste disposer – with air gap
- Option D: No waste disposer – with air gap
![]()
The drain hose connection of the disposer or a waste tee must be made before the drain trap and at least 20" (508 mm) above the floor where the dishwasher will be installed.
Helpful Tip: To reduce vibration of the hose, keep the hose away from the floor.
Option A: Waste disposer – no air gap
![Whirlpool - WDF520PADM9 - Connect Drain Hose - Option 1 Connect Drain Hose - Option 1]()
Helpful Tip: Remove disposer knockout plug.
- Using a hammer and screwdriver, knock plug into disposer.
![]()
- Use needle-nose pliers to remove plug.
![]()
- Attach drain hose to disposer inlet with large drain hose clamp (provided). Use pliers to squeeze clamp open and move into position.
![]()
Option B: No waste disposer – no air gap
![Whirlpool - WDF520PADM9 - Connect Drain Hose - Option 2 Connect Drain Hose - Option 2]()
- Fit rubber end of drain hose to waste tee and cut if needed.
NOTE: Do not cut ribbed section.
![]()
- Attach rubber end of drain hose to waste tee with a large drain hose clamp (provided). Use pliers to squeeze clamp open and move into position. If the drain hose was cut, use a 1 1/2" to 2" (38 mm to 50 mm) screw-type clamp (not provided).
![]()
Complete Installation
Check that the power supply wire or cord does not touch dishwasher motor or the lower part of the dishwasher tub.
![]()
Electrical Shock Hazard
Plug into a grounded 3 prong outlet.
Do not remove ground prong.
Do not use an adapter.
Do not use an extension cord.
Failure to follow these instructions can result in death, fire, or electrical shock.
- Power supply cord – Plug into a grounded 3 prong outlet
Plug into a grounded 3-prong outlet.
![Whirlpool - WDF520PADM9 - Complete Installation Complete Installation]()
- Reconnect power
Reconnect electrical power at the fuse box or circuit breaker box.
NOTE: With the access panel off, start the dishwasher and allow it to complete the shortest wash cycle. After the first 2 minutes, unlatch door, wait 5 seconds, and then open door. Check that there is water in the bottom of the dishwasher tub. Check that dishwasher is working properly
Install Access Panel
- For Plastic, begin with step 60
- For Metal, begin with step 63
Plastic Panel:
- Reinstall access panel and fasteners
Place the plastic access panel against the dishwasher leg. Make sure insulation does not interfere with the float assembly.
![]()
- Check access panel edge
Check that the lower edge of the access panel touches the floor. Adjust if necessary.
![]()
- Tighten fasteners
Using a flat-blade screwdriver, turn the fasteners 1/4 turn clockwise to lock into place. The fastener slot will be straight up and down when properly locked. Go to step 65.
![Whirlpool - WDF520PADM9 - Install Access Panel - Option 1 - Plastic Panel Install Access Panel - Option 1 - Plastic Panel]()
Metal Panel:
- Reinstall access panels
Place the panel against dishwasher legs. Using a Phillips screwdriver or 1/4" nut driver, reinstall the screws through the holes in the access panel.
![Whirlpool - WDF520PADM9 - Install Access Panel - Option 2 - Metal Panel Install Access Panel - Option 2 - Metal Panel]()
- Check lower panel edge
Check that the lower edge of the access panel touches the floor. Adjust if necessary.
![]()
- Tighten screws
Tighten access panel screws.
![]()
Check Operation
- Read the dishwasher Quick Start Guide that came with your dishwasher.
- Check that all parts have been installed and no steps were skipped. Check that you have all tools used. If the dishwasher is not working properly, disconnect power or unplug dishwasher and refer to the "If Dishwasher Does Not Operate" section.
If Dishwasher Does Not Operate
First try the solutions suggested here to possibly avoid the cost of a service call.
- Has the circuit breaker tripped or the house fuse blown?
- Is the door closed tightly and latched?
- Has the cycle been set correctly to start the dishwasher?
- Is the water turned on?
If none of these possible solutions work, refer to the contact information referenced in your Quick Start Guide.
Additional Tips
Expect longer wash times. Your new dishwasher will average 2–5 hours per load but use nearly 40% less energy than older models. Designed with a low-wattage, low-energy-consumption motor, your dishwasher washes longer to ensure exceptional cleaning. Certain models are equipped with an optical water sensor, so the first cycle will run longer to calibrate the optical sensor. Selecting certain options could increase cycle time past 3.5 hours.
Rinse aid is necessary for good drying results:
This dishwasher is designed to be used with rinse aid for good drying performance and controlling hard-water-deposit buildup. Energy-efficient dishwashers use less water and energy, so they depend on the water sheeting action of rinse aid for good drying performance.
Start/Resume light may flash:
When pressing Start/Resume, you must make sure the door is closed within 3 seconds. If you do not close the door within 3 seconds, the Start/Resume light will flash until you press it again.
(You must also do this when adding a dish during the middle of a cycle.)
DISHWASHER SAFETY
Your safety and the safety of others are very important.
We have provided many important safety messages in this manual and on your appliance. Always read and obey all safety messages.
This is the safety alert symbol.
This symbol alerts you to potential hazards that can kill or hurt you and others.
All safety messages will follow the safety alert symbol and either the word "DANGER" or "WARNING." These words mean:
![]()
You can be killed or seriously injured if you don't immediately follow instructions.
![]()
You can be killed or seriously injured if you don't follow instructions.
All safety messages will tell you what the potential hazard is, tell you how to reduce the chance of injury, and tell you what can happen if the instructions are not followed.
IMPORTANT SAFETY INSTRUCTIONS
![]()
When using your dishwasher, follow basic precautions, including the following:
- Read all instructions before using the dishwasher.
- Use the dishwasher only for its intended function.
- Use only detergents or wetting agents recommended for use in a dishwasher and keep them out the reach of children.
- When loading items to be washed:
- Locate sharp items so that they are not likely to damage the door seal; and
- Load sharp knives with the handles up to reduce the risk of cut-type injuries.
- Do not wash plastic items unless they are marked "dishwasher safe" or the equivalent. For plastic items not so marked, check the manufacturer's recommendations.
- Do not touch the heating element during or immediately after use.
- Do not operate your dishwasher unless all enclosure panels are properly in place.
- Do not tamper with controls.
- Do not abuse, sit on, or stand on the door or dish racks of the dishwasher.
- To reduce the risk of injury, do not allow children to play in or on a dishwasher.
- Under certain conditions, hydrogen gas may be produced in a hot-water system that has not been used for two weeks or more. HYDROGEN GAS IS EXPLOSIVE. If the hot water system has not been used for such a period, before using the dishwasher, turn on all hot-water faucets and let the water flow from each for several minutes. This will release any accumulated hydrogen gas. As the gas is flammable, do not smoke or use an open flame during this time.
- Remove the door to the washing compartment when removing an old dishwasher from service or discarding it.
- Do not use replacement parts that have not been recommended by the manufacturer (e.g. parts made at home using a 3D printer).
GROUNDING INSTRUCTIONS
- For a grounded, cord-connected dishwasher:
The dishwasher must be grounded. In the event of a malfunction or breakdown, grounding will reduce the risk of electric shock by providing a path of least resistance for electric current. The dishwasher is equipped with a cord having an equipment-grounding conductor and a grounding plug. The plug must be plugged into an appropriate outlet that is installed and grounded in accordance with all local codes and ordinance.
![]()
Improper connection of the equipment grounding conductor can result in a risk of electric shock.
Check with a qualified electrician or service representative if you are in doubt whether the dishwasher is properly grounded. Do not modify the plug provided with the dishwasher; if it will not fit the outlet, have a proper outlet installed by a qualified electrician. - For a permanently connected dishwasher:
The dishwasher must be connected to a grounded metal, permanent wiring system, or an equipment-grounding conductor must be run with the circuit conductors and connected to the equipment-grounding terminal or lead on the dishwasher.
![]()
Tip Over Hazard
Do not use dishwasher until completely installed.
Do not push down on open door.
Doing so can result in serious injury or cuts.
![]()
Available Replacement Parts for WHIRLPOOL WDF520PADM9
Find Your WHIRLPOOL Dishwasher Parts - Select From 1370 Models
Here you can download full pdf version of manual, it may contain additional safety instructions, warranty information, FCC rules, etc.
Need help?
Do you have a question about the WDF520PADM9 and is the answer not in the manual?
Questions and answers