Advertisement
Explanation of the type-form on the name plate label

Opening terminal cover and terminal block
Use the following procedure to open the terminal cover and pull the power terminal block.
| Inverter type | Procedure | Reference |
| VFS15-4185PL-W1 to 4220PL-W1 | Follow a procedure and remove the power terminal cover. | (6) in E6582175 |
Power circuit and control circuit terminal blocks
| Screw size | Tightening torque | |
| M6 | 4.5 N m | 40.0 lb in |
| M5 (grounding terminal) | 2.8 N m | 24.8 lb in |

Note1) Bend the clips on the wiring port of the terminal cover to connect the PB, PO, PA/+, and PC/- terminals.
Note2) Be careful to insert all wires into the cage of terminal block.
Specification of main circuit terminal
| A (MAX) | B (MAX) | C (MIN) | d1 | d2 (MIN) | E (MIN) | F | W (MAX) |
| 33 | 8 | 12 | Depend on cable | 6.2 | 13 | 10-14 | 16 |
Unit: mm
| | |
![]() Prohibition |
|
![]() Mandatory action |
|
These inverters have a built-in EMC noise filter and the inverter input power supply is grounded via the capacitor. By switching this grounding capacitor, the leakage current from the inverter can be reduced. It is switched by changing the position of the exclusive switching screw that the grounding capacitor is completely disconnected. For the details of the influence of the leakage current and measures.
Switch the grounding capacitor in the following procedure given. Be sure to switch with the power off. At the time of shipping, the grounding capacitor is grounded.
Install the screw at grounding capacitor switch position A (
), the grounding capacitor's capacity is switched from small to large.
(Default setting)
Tightening torque: 0.5 Nm (4.4 lbin)

Move the screw from the grounding capacitor switch position A (
), the grounding capacitor's capacity is switched from large to small. This reduces the leakage current. Insert the screw into the grounding capacitor switching position B (
) without turning it, then, hold and store it.
When this inverter is connected to the IT system (system that power supply grounding is insulated or has impedance from the ground), the screw has to be moved as the figure shows.

Note 1) Don't switch the grounding capacitor to small, if you set aul (overload characteristic selection) to 2.
What to do about the leakage current
These inverters have a built-in EMC noise filter, so the leakage current value in the delta connection (single-phase grounding) power supply may become greater. For detail of the moving the grounding capacitor screw.
Installation
Calorific values of the inverter and the required ventilation
About 5% of the rated power of the inverter will be lost as a result of conversion from AC to DC or from DC to AC. In order to suppress the rise in temperature inside the cabinet when this loss becomes heat loss, the interior of the cabinet must be ventilated and cooled.
The amount of forcible air-cooling ventilation required and the necessary heat discharge surface quantity when operating in a sealed cabinet according to motor capacity are as follows.
| Voltage class | Inverter type | Calorific values (W) Note 1) | Amount of forcible air cooling ventilation required (m3/min) | Heat discharge surface area required for sealed storage cabinet (m3) | Standby power Note 2) | ||||
| 4kHz | 12kHz | 4kHz | 12kHz | 4kHz | 12kHz | ||||
| Three-phase 500V | VFS15- | 4185PL-W1 4220PL-W1 | 429 516 | 538 635 | 2.44 2.93 | 3.05 3.60 | 8.58 10.31 | 10.75 12.69 | 29 29 |
Note 1) Case of 100% Load Continuation operation. The heat loss for the optional external devices
(input AC reactor, radio noise reduction filters, etc.) is not included in the calorific values in the table
Note 2) It is power consumption when power is on but is not output (0Hz), and cooling fan is activated (model with cooling fan).
In case of
=2 setting, be sure to install the input AC reactor (ACL)
Power circuit terminals
In case of
=2 setting, be sure to install the input AC reactor (ACL)
Setting acceleration/deceleration time
[Parameter setting]
| Title | Function | Adjustment range | Default setting |
| Acceleration time 1 | 0.0-3600 (360.0) (s) *1 | 30.0 |
| Deceleration time 1 | 0.0-3600 (360.0) (s) *1 | 30.0 |
*1: These parameters can be changed to 0.01s unit by setting
.
Low voltage operation
Not use this function.
Do not change the value of
(Low voltage operation upper limit frequency)
PWM carrier frequency
[Parameter setting]
| Title | Function | Adjustment range | Default setting |
| f300 | PWM carrier frequency | 2.0-16.0 (kHz) | 4.0 |
| VFS15- | Ambient temperature | PWM carrier frequency [kHz] | ||
| 2.0~4.0 | 4.1~12.0 | 12.1~16.0 | ||
| 4185PL-W1 | 40°C or less | 40.0A | 34.0A | 34.0A |
| Above 40 ∼ 50°C | 40.0A | 34.0A | 31.8A | |
| Above 50 ∼ 60°C | 32.5A | 27.8A | 14.0A | |
| 4220PL-W1 | 40°C or less | 46.0A | 39.1A | 35.7A |
| Above 40 ∼ 50°C | 46.0A | 38.0A | 30.1A | |
| Above 50 ∼ 60°C | 37.4A | 28.7A | 16.1A | |
(Input voltage above 480V)
| VFS15- | Ambient temperature | PWM carrier frequency [kHz] | ||
| 2.0~4.0 | 4.1~12.0 | 12.1~16.0 | ||
| 4185PL-W1 | 40°C or less | 40.0A | 34.0A | 34.0A |
| Above 40 ∼ 50°C | 40.0A | 34.0A | 30.4A | |
| Above 50 ∼ 60°C | 31.9A | 23.0A | 14.0A | |
| 4220PL-W1 | 40°C or less | 46.0A | 39.1A | 35.7A |
| Above 40 ∼ 50°C | 46.0A | 38.0A | 30.1A | |
| Above 50 ∼ 60°C | 36.7A | 26.4A | 16.1A | |
In case of
=2 (Variable torque characteristic (120%-60s) setting)
| VFS15- | Ambient temperature | PWM carrier frequency [kHz] |
| 2.0~4.0 | ||
| 4185PL-W1 | 40°C or less | 43A |
| 4220PL-W1 | 40°C or less | 58A |
Note 1) In case of
=2 setting, be sure to install the input AC reactor (ACL) between power supply and inverter, to remove the protective label on the top of the inverter (Use a tool to remove the protective label.), and to connect the grounding capacitors by moving a screw.
Then, to use the inverter at 40°C or less of the ambient temperature with setting
to 4.0 kHz or less. Input AC reactor: Inductance: 0.3mH, Current: 100A
Dynamic (regenerative) braking - For abrupt motor stop
| Inverter type | Braking resistor | ||
| Type-form | Rating | Continuous regenerative braking allowable capacity | |
| VFS15-4185PL-W1 | PBR7-008W030 | 880W-30Ω | 270W |
| VFS15-4220PL-W1 | PBR7-017W015 | 1760W-15Ω | 540W |
In case of
=2 (Variable torque characteristic (120%-60s) setting)
| Inverter type | Braking resistor | ||
| Type-form | Rating | Continuous regenerative braking allowable capacity | |
| VFS15-4185PL-W1 | PBR7-017W015 | 1760W-15Ω | 540W |
| VFS15-4220PL-W1 | PBR7-017W015 | 1760W-15Ω | 540W |
The minimum allowable resistance values of the externally connectable braking resistors are listed in the table below.
Do not connect braking resistors with smaller resultant resistances than the listed minimum allowable resistance values.
| VFS15- | Minimum value (Ω) |
| 4185PL-W1 | 15 |
| 4220PL-W1 | 15 |
Switching of an acceleration/deceleration time 1, 2, 3
[Parameter setting]
| Title | Function | Adjustment range | Default setting |
| Acceleration time 2 | 0.0-3600 (0.00-360.0) (s) *1 | 30.0 |
| Deceleration time 2 | 0.0-3600 (0.00-360.0) (s) *1 | 30.0 |
| Acceleration time 3 | 0.0-3600 (0.00-360.0) (s) *1 | 30.0 |
| Deceleration time 3 | 0.0-3600 (0.00-360.0) (s) *1 | 30.0 |
*1: These parameters can be changed to 0.01s unit by setting
.
Measures to satisfy the EMC Directive
| | |
![]() Prohibition |
|
| Combination of inverter and filter | ||||
| Inverter type | Conducted noise IEC61800-3, category C2 Motor wiring length of 5m or less PWM carrier frequency ( ): 4kHz or less | Conducted noise IEC61800-3, category C3 Motor wiring length of 25m or less PWM carrier frequency ( ): 4kHz or less, 8kHz to 12kHz. | Conducted noise IEC61800-3, category C1 Motor wiring length of 20m or less PWM carrier frequency ( ): 4kHz or less | Conducted noise IEC61800-3, category C2 (Motor wiring length of 50m or less) PWM carrier frequency ( ): 4kHz or less |
| VFS15-4185PL-W1 | Built-in filter + Outer magnetic core <Use the 90°C wire (*1)> | Built-in filter | EMF6-4070F | EMF6-4070F |
| VFS15-4220PL-W1 | ||||
| Combination of inverter and filter | ||
| Inverter type | Radiated noise IEC61800-3, category C2 Motor wiring length of 5m or less PWM carrier frequency ( ): 4kHz or less | Radiated noise IEC61800-3, category C3 Motor wiring length of 25m or less PWM carrier frequency ( ): 4kHz or less |
| VFS15-4185PL-W1 | Built-in filter + Outer magnetic core <Use the 90°C wire(*1)> | Built-in filter |
| VFS15-4220PL-W1 | ||
(*1) Use the copper wires shielded with an insulator with a maximum allowable temperature of 90°C.
[Example of wiring]

Measures to satisfy the Low Voltage Directive
| | |
| Mandatory action |
|
| | |
| Mandatory action |
|
Comply with Low Voltage Directive 2014/35/EU under the condition below.
Electrical Equipment (Safety) Regulations S.I.2016/1101 are also covered.
When incorporating the inverter into a power drive system, it is necessary to take the following measures.
Prospective short-circuit current (Isc) rating table
The rating of the short circuit protection devices (SCPD) in the table below are maximum values with Enclosure. Smaller sizes can be used.
| Reference | Input Voltage (V) | Applicable motor (kW) | Max Isc (kA) | Short circuit protective device rating | Minimum line reactor (mH) | Minimum enclosure volume (L) | ||
| Fuse *1 gG | Circuit *2 Breaker (PowerPact) | Circuit *2 Breaker (Tesys GV) | ||||||
| VFS15-4185PL | 415 | 18.5 | 22 | 100 | BGL36060 | GV3L65 | - | 63 |
| VFS15-4122PL | 22.0 | 22 | 125 | BGL36070 | GV3L65 | - | 63 | |
The Ampare rating of the short circuit protection devices in the table are maximum values. Smaller amp sizes may be used. Branch circuit protection must be provided in accordance with any additional local codes.
*1:Mersen is recommended supplier
*2:PowerPact and Tesys GV series from Schneider Electric are recommended.
Prospective short-circuit current (Isc) rating table (semiconductor fuse IEC60269-4)
The rating of the short circuit protection devices (SCPD) in the table below are maximum values with Enclosure. Smaller sizes can be used.
| Reference | Input Voltage (V) | Applicable motor (kW) | Max Isc (kA) | Short circuit protective device rating | Minimum line reactor (mH) | Minimum enclosure volume (L) | |
| Fuse*1 gS | Fuse*1*2 aR | ||||||
| VFS15-4185PL | 415 | 18.5 | 22 | 100 | 100 | - | 63 |
| VFS15-4122PL | 22.0 | 22 | 125 | 125 | - | 63 | |
*1:Mersen is recommended supplier
*2: Use aR type fuse with a proper overload protection.
<About Ecodesign>
For technical data of ecodesign requirement, access the following website " https://www.toshiba-tips.co.jp/en/".
Selection of wire size
In case of
=1 (Constant torque characteristic (150%-60s) setting)
| Voltage class | Applicable motor (kW) | Wire size (mm2) Note 4) | |||||
| Power circuit Note 1) | Optional | Grounding cable | |||||
| Input | Output | DCL | Braking resistor | ||||
| Without DCL | With DCL | ||||||
| 3 phase 500V | 18.5 | 16 | 10 | 10 | 16 | 6 | 16 |
| 22 | 25 | 10 | 16 | 25 | 10 | 16 | |
In case of
=2 (Variable torque characteristic (120%-60s) setting)
| Voltage class | Applicable motor (kW) | Wire size (mm2) Note 5) | |||||
| Power circuit Note 1) | Optional | Grounding cable | |||||
| Input | Output | DCL | Braking resistor | ||||
| Without DCL | With DCL | ||||||
| 3 phase 500V | 22 | 10 | 10 | 10 | 10 | 6 | 10 |
| 30 | 16 | 16 | 16 | 16 | 10 | 16 | |
Note 1: Sizes of the wires connected to the input terminals R/L1, S/L2 and T/L3 and the output terminals U/T1, V/T2 and W/T3 when the length of each wire does not exceed 30m. If there is a need to bring the inverter into UL/CSA compliance, use wires specified in manual "E6582383".
Note 4: The wire size specified to HIV wires (copper wires shielded with an insulator with a maximum allowable temperature of 75°C) used at an ambient temperature of 50°C or less.
When operating the inverter with DC input (use PA/+ and PC/-), the wire size specified to HIV wires (copper wires shielded with an insulator with a maximum allowable temperature of 90°C) used at an ambient temperature of 50°C or less.
Note 5: The wire sizes specified in the above table apply to HIV wires (copper wires shielded with an insulator with a maximum allowable temperature of 75°C) used at an ambient temperature of 40°C or less.
When operating the inverter with DC input (use PA/+ and PC/-), the wire size specified to HIV wires (copper wires shielded with an insulator with a maximum allowable temperature of 90°C) used at an ambient temperature of 40°C or less.
Selection of wiring devices
In case of
=1 (constant torque characteristic (150%-60s) setting)
| Voltage class | Applicable motor (kW) | Input current (A) | Molded case circuit breaker (MCCB) Earth leakage circuit breaker (ELCB) | Magnetic contactor (MC) Note 2) Note 3) | |||
| Without DCL | With DCL | Rated current (A) | Rated current (A) | ||||
| Without DCL | With DCL | Without DCL | With DCL | ||||
| 3 phase 500V | 18.5 | 55.3 | 35.6 | 75 | 50 | 60 | 50 |
| 22 | 64.6 | 41.7 | 100 | 60 | 80 | 50 | |
The recommended molded case circuit breaker (MCCB/ELCB) must be connected to primary side of each inverter to protect the wiring system.
In case of
=2 (Variable torque characteristic (120%-60s) setting)
| Voltage class | Applicable motor (kW) | Input current (A) | Molded case circuit breaker (MCCB) Earth leakage circuit breaker (ELCB) | Magnetic contactor (MC) Note 2) Note 3) | |||
| Without DCL | With DCL | Rated current (A) | Rated current (A) | ||||
| Without DCL | With DCL | Without DCL | With DCL | ||||
| 3 phase 500V | 22 | 45.8 | 40.8 | 60 | 60 | 50 | 50 |
| 30 | 59.5 | 55.4 | 75 | 75 | 80 | 60 | |
The recommended molded case circuit breaker (MCCB/ELCB) must be connected to primary side of each inverter to protect the wiring system.
Note 2: Be sure to attach a surge absorber to the exciting coil of the relay and the magnetic contactor.
Note 3: When using the auxiliary contacts 2a of the magnetic contactor MC for the control circuit, connect the contacts 2a in parallel to increase reliability.
Note 9: In case of
=2 setting, be sure to install the input AC reactor (ACL) between power supply and inverter.
| Title | Communication No. | Function | Unit | Minimum setting unit Panel/Communication | Adjustment range | Default setting | User setting |
| 0009 | Acceleration time 1 | s | 0.1/0.1 | 0.0-3600 (360.0) *1 | 30.0 | |
| 0010 | Deceleration time 1 | s | 0.1/0.1 | 0.0-3600 (360.0) *1 | 30.0 |
*1: These parameters can be changed to 0.01s unit by setting
.
| Title | Communication No. | Function | Unit | Minimum setting unit Panel/Communication | Adjustment range | Default setting | User setting |
| 0300 | PWM carrier frequency | kHz | 0.1/0.1 | 2.0-16.0 | 4.0 | |
| 0500 | Acceleration time 2 | s | 0.1/0.1 | 0.0-3600 (360.0) *1 | 30.0 | |
| 0501 | Deceleration time 2 | s | 0.1/0.1 | 0.0-3600 (360.0) *1 | 30.0 | |
| 0510 | Acceleration time 3 | s | 0.1/0.1 | 0.0-3600 (360.0) *1 | 30.0 | |
| 0511 | Deceleration time 3 | s | 0.1/0.1 | 0.0-3600 (360.0) *1 | 30.0 |
*1: These parameters can be changed to 0.01s unit by setting
.
Default settings
The default setting of motor parameters are adapted to Toshiba motor.
| Inverter type | Torque boost value | Dynamic braking resistance | Dynamic braking resistor capacity | Automatic torque boost value | Motor rated capacity Note 1) | Motor rated current |
/![]() (%) | ![]() (Ω) | ![]() (kW) | ![]() (%) | ![]() (kW) | ![]() (A) | |
| VFS15- | ||||||
| 4185PL | 1.5 | 30.0 | 0.88 | 1.4 | 18.50 | 34.50 |
| 4220PL | 1.7 | 15.0 | 1.76 | 1.6 | 22.00 | 40.00 |
| Inverter type | Motor no-load current | Motor rated speed | Over-voltage stall protection level | Integrating wattmeter display unit selection | |
![]() (%) | ![]() (USA) (min-1) | ![]() (ASIA,EU) (min-1) | ![]() (%) | ![]() - | |
| VFS15- | |||||
| 4185PL | 37 | 1770 | 1475 | 141 | 1 |
| 4220PL | 32 | 1760 | 1470 | 141 | 1 |
If the parameters and the adjustment range, which are not shown in the manuals (E6582175 and additional sheet) are displayed in the inverter, those parameters and adjustment range are "the factory specific coefficient parameters". Do not change or set the value of these parameters and adjustment range.
Standard specifications

Note 1) Capacity is calculated at 440V for the 500V models.
Note 2) Indicates rated output current setting when the PWM carrier frequency (parameter
) is 4kHz or less.
When exceeding 4kHz, the rated output current setting is indicated in the parentheses.
It needs to be further reduced for PWM carrier frequencies above 12 kHz.
Note 3) Maximum output voltage is the same as the input voltage.
Note 4) If the input voltage is below the rated voltage, the inverter output current may be increased or limited depending on the load equipment.
Note 5) Required power supply capacity varies with the value of the power supply side inverter impedance (including those of the input reactor and cables).
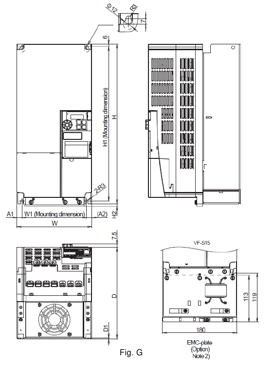
Outside dimensions and mass
| Voltage class | Inverter type | Dimensions (mm) | Drawing | Approx. weight (kg) | ||||||||
| W | H | D | W1 | H1 | H2 | D1 | A1 | A2 | ||||
| 3-phase 500V | VFS15-4185PL-W1 | 180 | 384 | 220.5 | 156 | 371.5 | 6 | 1.5 | 12 | 12 | G | 10.2 |
| VFS15-4220PL-W1 | ||||||||||||
Outline drawing
Note 1 To make it easier to grasp the dimensions of each inverter, dimensions common to all inverters in these figures are shown with numeric values but not with symbols.
Here are the meanings of the symbols used.
W: Width, H: Height, D: Depth
W1: Mounting dimension (horizontal)
H1: Mounting dimension (vertical)
H2: Height of EMC plate mounting area
D1: Mounting thickness
A1: Mounting dimension (horizontal) from left side
A2: Mounting dimension (horizontal) from right side Note 2. Here are the available EMC plates. EMP012Z
The items described in the instruction manual and on the inverter itself are very important so that you can use safely the inverter, prevent injury to yourself and other people around you as well as to prevent damage to property in the area. Thoroughly familiarize yourself with the symbols and indications shown below and then continue to read the manual. Make sure that you observe all warnings given.
Please read "Safety precautions" and text in the instruction manual E6582175 in CD-ROM for details not described in this instruction manual.
Following chapter numbers are same as the manual E6582175.
Explanation of markings
| Marking | Meaning of marking |
| | Indicates a hazardous situation that, if not avoided, could result in death or serious injury. |
| | Indicates a hazardous situation that, if not avoided, could result in minor or moderate injury. |
| NOTICE | Indicates information considered important but not hazard-related. It is used to address practices not related to physical injury. |
Meanings of symbols
| Symbol | Meaning of symbol |
| Indicates a prohibition (Do not do it). Detailed information on the prohibition is described in illustration and text in or near the symbol. |
| Indicates a mandatory action that must be followed. Detailed information on the mandatory action is described in illustration and text in or near the symbol. |
| Indicates a warning or caution. Detailed information on the warning or caution is described in illustration and text in or near the symbol. |
Here you can download full pdf version of manual, it may contain additional safety instructions, warranty information, FCC rules, etc.
Advertisement


=1 (constant torque characteristic (150%-60s) setting) (Input voltage 480V or less)
Need help?
Do you have a question about the TOSVERT VF-S15 and is the answer not in the manual?
Questions and answers