Sign In
Upload
Download
Table of Contents
Contents
Add to my manuals
Delete from my manuals
Share
URL of this page:
HTML Link:
Bookmark this page
Add
Manual will be automatically added to "My Manuals"
Print this page
×
Bookmark added
×
Added to my manuals
Manuals
Brands
Haier Manuals
Air Conditioner
ACD12KE-E
Service manual
System Flow Chart - Haier Acd12Ke-E Service Manual
Hide thumbs
1
2
3
Table Of Contents
4
5
6
7
8
9
10
11
12
13
14
15
16
17
18
19
20
21
22
23
24
25
26
page
of
26
Go
/
26
Contents
Table of Contents
Bookmarks
Table of Contents
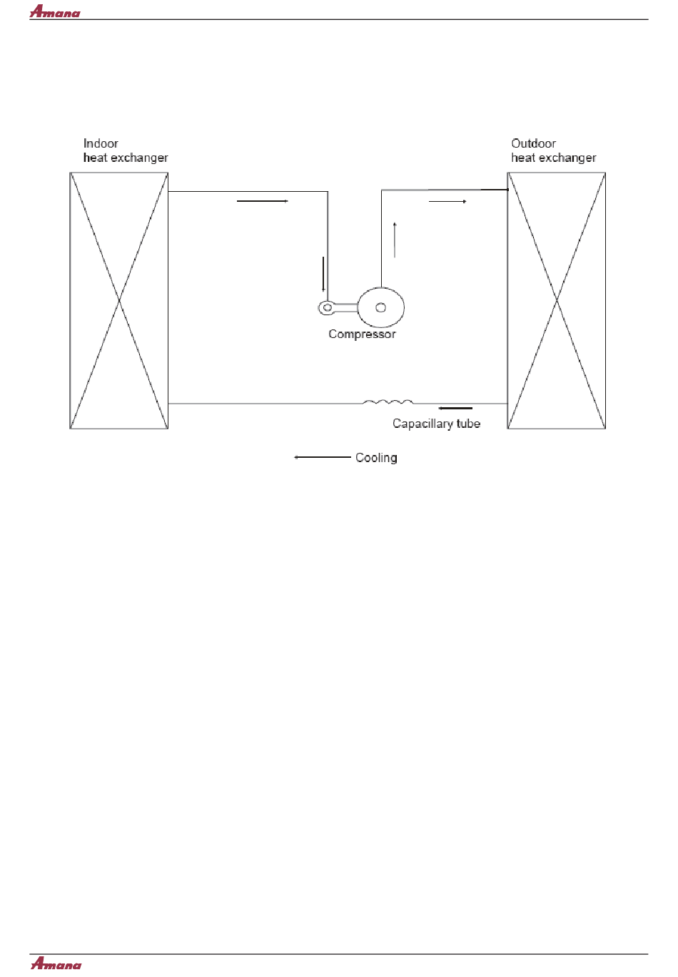
System Flow Chart
ACD12KE
8. System Flow Chart
20
Domestic Air Conditioner
Table of
Contents
Previous
Page
Next
Page
1
...
20
21
22
23
24
25
26
Table of Contents
Need help?
Do you have a question about the ACD12KE-E and is the answer not in the manual?
Ask a question
Go to Questions and Answers
Related Manuals for Haier ACD12KE-E
Air Conditioner HAIER ACD187R - annexe 2 Manual
(24 pages)
Air Conditioner Haier AU EAA Series Manual
(408 pages)
Air Conditioner Haier AB182ACERA Service Manual
(64 pages)
Air Conditioner Haier AC282AFEAA Operation And Installation Manual
Convertible type indoor unit (158 pages)
Air Conditioner Haier AC282AFEAA Operation & Installation Manual
Convertible type air conditioner (32 pages)
Air Conditioner Haier AU282AHBEA Service Manual
(365 pages)
Air Conditioner Haier AB242ACBEA Service Manual
Commercial air conditioning 24 28 universal outdoor unit air conditioning (136 pages)
Air Conditioner Haier AB36NACBEA Service Manual
4hp 5hp universal outdoor unit air conditioning (143 pages)
Air Conditioner Haier AC182ACABA Operation Manual
Convertible type room air conditioner (22 pages)
Air Conditioner Haier AC-8888-107 Service Manual
Commercial air conditioner (45 pages)
Air Conditioner Haier AC-8888-20 Service Manual
Cassette type (65 pages)
Air Conditioner HAIER ESA3067 Manual
(24 pages)
Air Conditioner HAIER HWR05XC5 - annexe 2 Manual
(19 pages)
Air Conditioner HAIER HWR05XC5 - annexe 1 Manuel
(17 pages)
Air Conditioner Haier AC35S2SG1FA Operation Manual And Installation Manual
Convertible type air conditioner (32 pages)
Air Conditioner Haier HPRB09XC7 User Manual
Portable air conditioner (36 pages)
Related Content for Haier ACD12KE-E
ESA410J System Flow Chart
Haier ESA410J
HWR10XC5 System Flow Chart
Haier HWR10XC5
ESA3087 System Flow Chart
Haier ESA3087
HW-18CK03 System Flow Chart
Haier HW-18CK03
HW-12LM03 System Flow Chart
Haier HW-12LM03
HW-07LN03 System Flow Chart
Haier HW-07LN03
HWE18VCN System Flow Chart
Haier HWE18VCN
HWE24VCN System Flow Chart
Haier HWE24VCN
HW-12C03 System Flow Chart
Haier HW-12C03
AC-8888-20 System Flow Chart
Haier AC-8888-20
ESA418J System Flow Chart
Haier ESA418J
HW-05LN03 System Flow Chart
Haier HW-05LN03
EST10XCM System Flow Chart
Haier EST10XCM
ESA415J System Flow Chart
Haier ESA415J
HWE08XCN System Flow Chart
Haier HWE08XCN
ESA41J System Flow Chart
Haier ESA41J
This manual is also suitable for:
Acd12ke
Table of Contents
Print
Rename the bookmark
Delete bookmark?
Delete from my manuals?
Login
Sign In
OR
Sign in with Facebook
Sign in with Google
Upload manual
Upload from disk
Upload from URL
Need help?
Do you have a question about the ACD12KE-E and is the answer not in the manual?