Checking Procedure - Toshiba Ras-B13B2Kvg-E1 Service Manual

Indoor unit, outdoor unit
Table of Contents
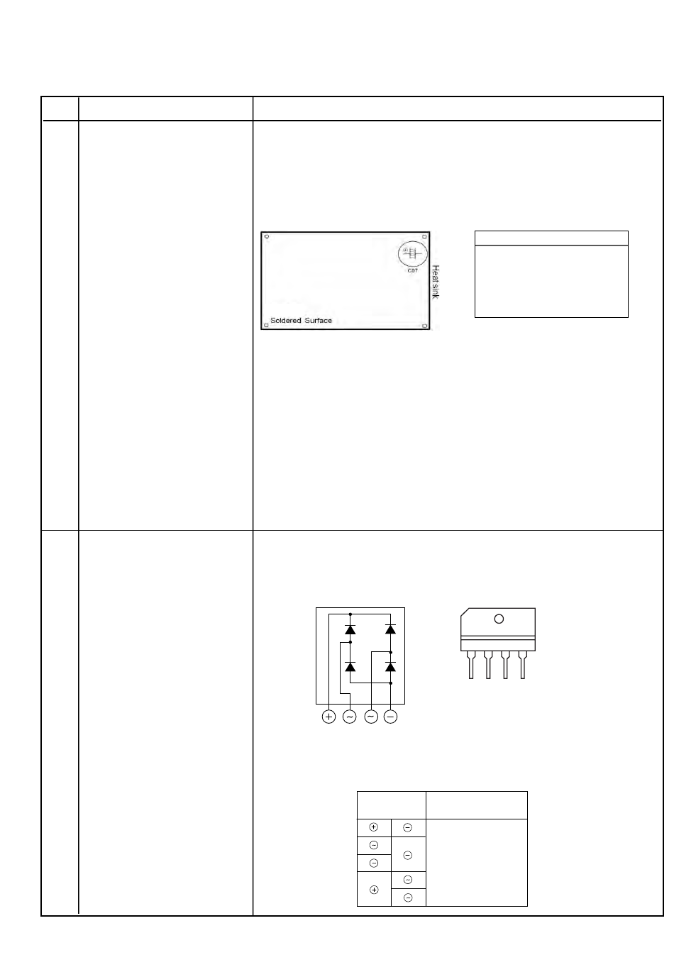
11-8-5. Checking Method for Each Part
No.
Part name
1
Electrolytic capacitor
2
Converter module

Checking procedure

1. Turn OFF the power supply breaker.
2. Discharge all three capacitors completely.
3. Check that safety valve at the bottom of capacitor is not broken.
4. Check that vessel is not swollen or exploded.
5. Check that electrolytic liquid does not blow off.
6. Check that the normal charging characteristics are show in
continuity test by the tester.
WP-043
C07 → 500µF/ 400V
1. Turn OFF the power supply breaker.
2. Discharge all three capacitors completely.
3 Check that the normal rectification characteristics are shown in continuity
test by the tester.
1
2
3
Tester rod
1
2
3
1
- 91 -
Case that product is good
Pointer swings once, and
returns slowly. When
performing test once again
under another polarity, the
pointer should return.
~ ~
+
1 2 3
4
(DB01)
4
Diode check
Resistance value
in good product
4
50kΩ or more
4
(0Ω in trouble)
2
3
Table of Contents
loading
Need help?

Need help?

Do you have a question about the RAS-B13B2KVG-E1 and is the answer not in the manual?

This manual is also suitable for:

Ras-13b2avg-eRas-avg-e

Table of Contents