19.4 Secure Installation - Bosch Dwk67Fn60 User Manual And Installation Instructions

Table of Contents
en Installation instructions
16
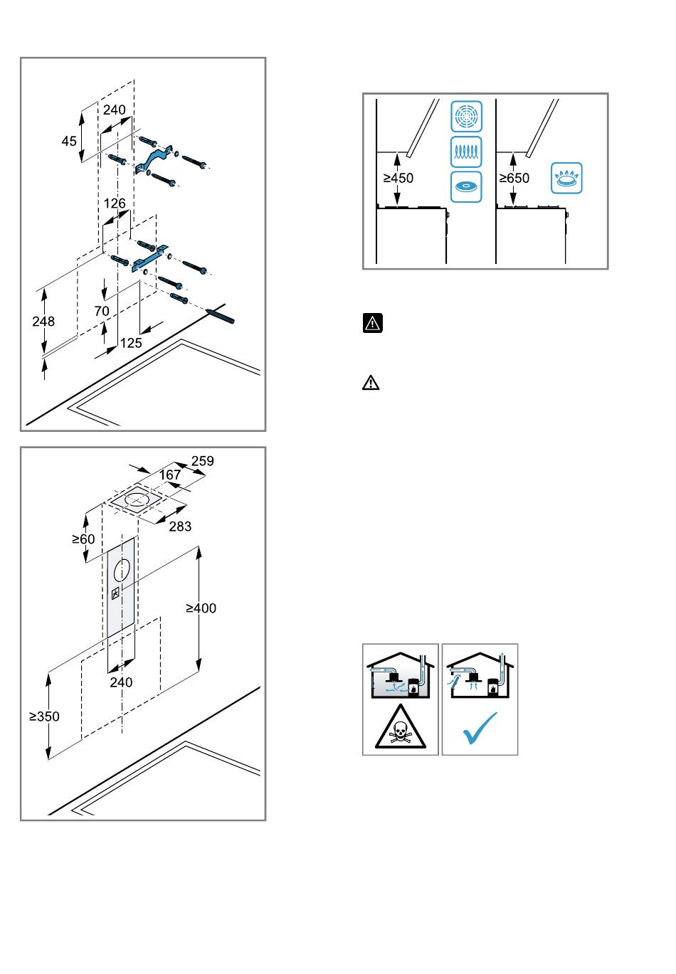
19.3 Safety clearances
Comply with the safety clearances for the appliance.
For Australia and New Zealand the minimum safety
clearance above electrical cooktops must be 600 mm.
 19.4 Secure installation
Follow these safety instructions when in-
stalling the appliance.
WARNING ‒ Risk of poisoning!
Risk of poisoning from flue gases being
drawn back in. Room-air-dependent heat-pro-
ducing appliances (e.g. gas, oil, wood or coal-
operated heaters, continuous flow heaters or
water heaters) obtain combustion air from the
room in which they are installed and dis-
charge the exhaust gases into the open
through an exhaust gas system (e.g. a chim-
ney). With the extractor hood switched on, air
is extracted from the kitchen and the adjacent
rooms. Without an adequate supply of air, the
air pressure falls below atmospheric pressure.
Toxic gases from the chimney or the extrac-
tion shaft are sucked back into the living
space.
▶ Always ensure adequate fresh air in the
room if the appliance is being operated in
exhaust air mode at the same time as a
room-air-dependent heat-producing appli-
ance is being operated.
▶ It is only possible to safely operate the ap-
pliance if the pressure in the room in which
the heating appliance is installed does not
fall below 4 Pa (0.04 mbar). This can be
achieved whenever the air needed for com-

Hide quick links:

Table of Contents
loading
Need help?

Need help?

Do you have a question about the DWK67FN60 and is the answer not in the manual?

Table of Contents