Mitsubishi Electric MELSERVO MR-J2-A Product Specifications And Installation Manual page 303

Servo motors and servo amplifiers
Table of Contents

Advertisement

10. SPECIFICATIONS
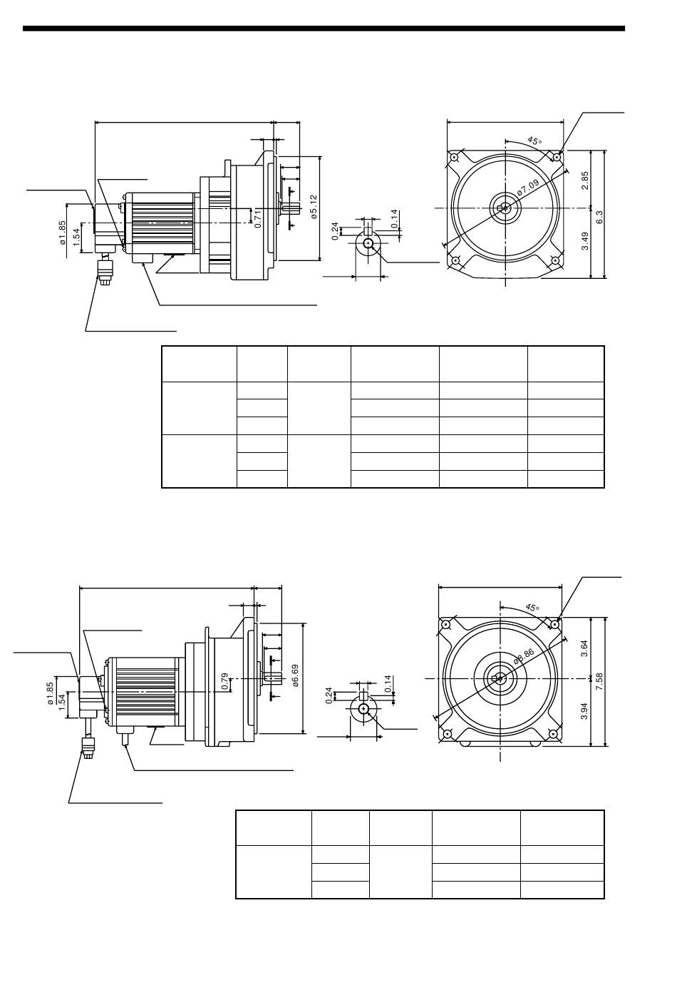
HA – FF33(B)G1 • HA – FF43(B)G1
Earth terminal M3 screw
(Opposite side)
Caution plate
Bottom
Top
Encoder cable 11.8in
With connector 172169-9
(AMP make)
HA – FF63(B)G1
Earth terminal M3 screw
(Opposite side)
Caution plate
Bottom
Top
Top
Power supply cable
VCTF 3-0.05
(With end-insulated round crimping terminal 0.05-4)
Encoder cable 11.8in
With connector 172169-9
(AMP make)
LL
0.47
Top Bottom
Motor plate
Power supply cable
2
VCTF 3-0.05
19.7in
(With end-insulated round crimping terminal 0.05-4)
Red: Phase U
White: Phase V
Black: Phase W
(Note 2)
Servo Motor
Reduction
Model
Ratio
1/5
HA–FF33
1/10
(B)G1
1/30
1/5
HA–FF43
1/10
(B)G1
1/30
Note: 1. Values in parentheses are those for the servo motors with electromagnetic brakes.
Note:
2. Nominal reduction ratios. For actual reduction ratios, refer to Section 10-3.
10.81(12.26)
1.83
0.47
0.12
1.42
1.26
Bottom
Motor plate
2
19.7in
Red: Phase U
White: Phase V
Black: Phase W
Servo Motor
Model
HA–FF63
(B)G1
Note: 1. Values in parentheses are those for the servo motors with
Note: 1.
Note:
2. Nominal reduction ratios. For actual reduction ratios, refer to
Note: 1.
1.48
0.12
1.1
0.98
A
0.24
A
M6 screw,
depth 0.39
ø0.75
Section AA
Reduction
Inertia Moment
Gear
2
WK
[oz•in
Model
2.980 (3.704)
GR–S–30
2.980 (3.704)
2.939 (3.663)
5.577 (7.490)
GR–S–40
5.577 (7.490)
5.536 (7.449)
A
0.24
A
M6 screw,
depth 0.47
ø0.87
Section AA
(Note 2)
Reduction
Reduction
Gear
Ratio
Model
1/5
1/10
GR–S–60
1/30
electromagnetic brakes.
Section 10-3.
10– 86
5.71
(Note 1) Variable
(Note 1) Weight
Dimensions
2
]
LL
9.84 (11.3)
14.3 (15.9)
9.84 (11.3)
14.3 (15.9)
9.84 (11.3)
14.3 (15.9)
10.2 (11.63)
17.6 (19.6)
10.2 (11.63)
17.6 (19.6)
10.2 (11.63)
17.6 (19.6)
7.28
Inertia Moment
(Note 1) Weight
2
2
WK
[oz•in
]
7.326 (9.240)
28.7 (30.6)
7.326 (9.240)
28.7 (30.6)
7.217 (9.131)
28.7 (30.6)
[Unit: in]
4–ø0.39
[lb]
[Unit: in]
4–ø0.47
[lb]

Advertisement

Table of Contents
loading
Need help?

Need help?

Do you have a question about the MELSERVO MR-J2-A and is the answer not in the manual?

Table of Contents