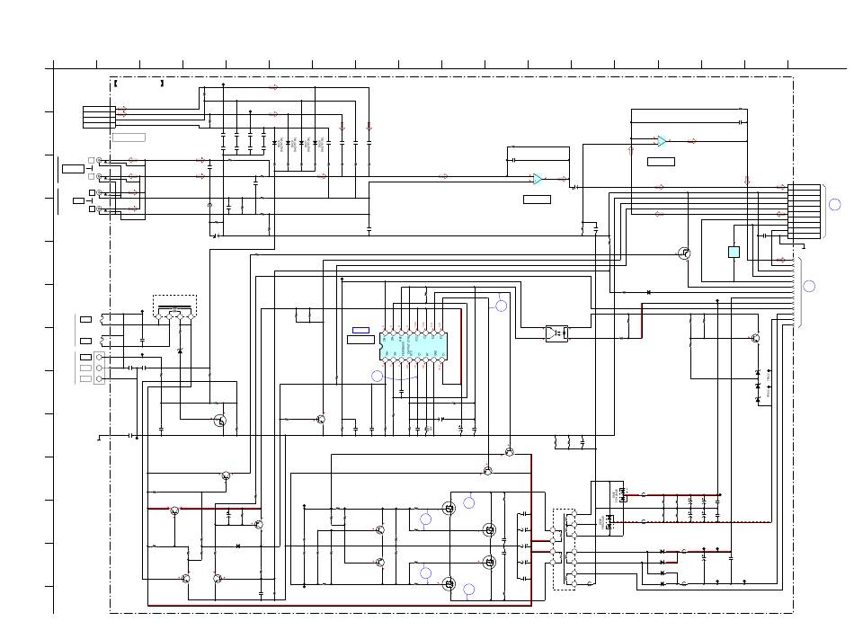
Schematic Diagram - Main Board (1/2) - Sony Xm-Gs100 Service Manual

Monaural power amplifier
Hide thumbs Also See for XM-GS100:
Table of Contents
4-5.

SCHEMATIC DIAGRAM - MAIN Board (1/2) -

1
2
3
MAIN BOARD
(1/2)
A
L+
1
R+
2
L–
3
R–
4
CN101
B
4P
SENSING POWER ON
HIGH LEVEL INPUT
L
(THROUGH)
OUTPUT
C
R
J101
L
INPUT
R
D
E
L901
15uH
F
TP045
1
2
F901
30A
30A
30V
R906
1k
C902
F902
1000p
30A
30A
30V
G
TB101
TP044
D902
DZ2J160M0L
REM
+12V
C901
C987
R901
1
1000p
10k
GND
H
C903
C947
1000p
0.01
I
CAM005
TP041
(CHASSIS)
J
R952
1.5k
Q901
KTA1281Y-AT
14.2
K
13.5
R904
270
L
Q901, 903
B+ SWITCH
0.7
Q903
2SC3052EF-T1-LEF
M
XM-GS100
• See page 8 for waveforms. • See page 8 for IC Block Diagrams.
4
5
6
7
TP042
R969
2.2k
TP043
R970
2.2k
C975
C976
C977
C978
220p
220p
220p
220p
C986
0.1
C979
C980
C981
C982
220p
220p
220p
220p
R978
R977
R976
R975
R974
R963
C138
22k
22k
22k
22k
470k
47k
1000p
R964
47k
C139
1000p
R965
47k
FB107
C125
R121
1.1uH
0.01
1k
R966
47k
R127
R968
4.7k
10k
C105
4.7
50V
R907
100k
R875
R877
1k
1k
3
4
R979
10k
R874
1k
R902
10k
Q807
2SC3052EF-T1-LEF
0.7
6.2
LED DRIVER
0
R876
0
Q902
10k
RT1N141C-TP-1
R903
R987
10k
10k
OVER VOLTAGE DETECT
Q904
ISA1235AC1-T112-1EF
DC DETECT
14.2
14.2
13.5
R814
10k
TP031
R917
22
14.2
C801
R809
4.7
10k
R919
14.2
50V
2.2k
14.2
Q805
ISA1235AC1-T112-1EF
0
R953
R915
10k
D901
1k
DA2J10100L
R905
R954
R810
R916
R921
R922
2.2k
10k
10k
1k
2.2k
2.2k
Q805, 806
LED DRIVER
R811
0
14.2
10k
0
Q806
2SC3052EF-T1-LEF
R918
TP032
22
C804
R812
470p
10k
8
9
10
11
C985
C984
C983
0.1
0.1
0.1
R973
R972
R971
470k
470k
470k
C973
100p
TP033
R908
2.2k
4
IC B/D
16
15
14
13
12
11
10
9
IC901
DC/DC CONVERTER
IC901
TL594INSR
1
2
3
4
5
6
7
8
3
C904
0.01
R912
C905
100k
47
R909
16V
3.3k
C805
C806
R818
R910
C908
C907
0.01
1000p
100k
15k
100
0.1
16V
C906
1000p
3.9
5
2SC4357-T11-1E
3.9
BUFFER
5
Q912
2SC4357-T11-1E
BUFFER
Q905
FKV575
14.2
SWITCHING
2
R930
DRIVER
2.2
4.8
R920
S
Q906
1
2.2k
FKV575
14.2
4.8
SWITCHING
R931
DRIVER
2.2
0.5
4.8
Q914
2SC3326N-TE85L-B
R925
S
1k
SWITCHING DRIVER
R928
1k
S
R935
2.2
0.5
4.8
Q915
Q910
2SC3326N-TE85L-B
FKV575
4.8
1
SWITCHING DRIVER
SWITCHING
14.2
S
DRIVER
R936
2.2
4.8
2
Q909
FKV575
SWITCHING
14.2
DRIVER
13
13
12
13
14
0
R967
6
0
10k
5
(3/3)
C972
100p
IC902
PRE AMP
IC902
0
NJM4565M(TE2)
0
C974
2
0
47
1
16V
3
(1/3)
IC902
PRE AMP
IC902
NJM4565M(TE2)
R981
C989
47k
4700p
R834
47k
RT1N441C-TP-1
DC DETECT
D855
R813
DA2J10100L
10k
IC900
PC-17K1
R988
1k
DC BALANCE DETECT
4
2
0
67.6
R989
220
3
1
5
68.4
R951
R950
C948
4.7k
4.7k
0.22
Q913
FB907
R938
22
T901
R926
100k
DC/DC CONVERTER
TRANSFORMER
C912
0.022
R927
6
100k
FB908
C913
2200
5
16V
1
7
C963
C914
4700p
2200
2
16V
D909
GN1G
C964
3
8
4700p
C915
2200
D910
16V
GN1G
4
9
D912
GN1G
C918
10
0.022
D913
GN1G
11
FB904
R940
22
XM-GS100
15
16
17
18
R980
47k
C988
4700p
0
7
CN103
10P
1
Line in
2
Second GND
3
First GND
4
LED Blue
5
LED Red
CONTROL
6
Line out
7
+15V
(Page 16)
8
–15V
C825
9
Active Thermal control
0.1
10
ESD
Q907
-14.2
4
CAM003
IC902
GND
NJM4565M(TE2)
5
(CHASSIS)
(2/3)
POWER
8
1
0
14.8
2
3
4
5
1
6
7
MAIN
TP021
BOARD
8
(2/2)
9
(Page 14)
10
11
R986
R985
12
470k
100k
13
67.6
8.5
R984
Q924
22k
KTC4373
8.2
DC BALANCE
DETECT
D933
DZ2J160M0L
D931
DZ2J300M0L
D932
DZ2J300M0L
TP001
R923
C919
C920
C923
100k
1800
1800
0.1
80V
80V
250V
R924
C921
C922
C924
100k
1800
1800
0.1
80V
80V
250V
TP003
TP023
FB905
C925
C926
220
0.1
50V
TP004
TP024
FB906
A
BOARD
CN002
Table of Contents
loading
Need help?

Need help?

Do you have a question about the XM-GS100 and is the answer not in the manual?

Table of Contents