Motor; Heavy Duty Top Control; Heavy Duty Side Discharge - Frigidaire Fas156N1A Product Information And Technical Manual

2004 room air conditioners
Table of Contents

Advertisement

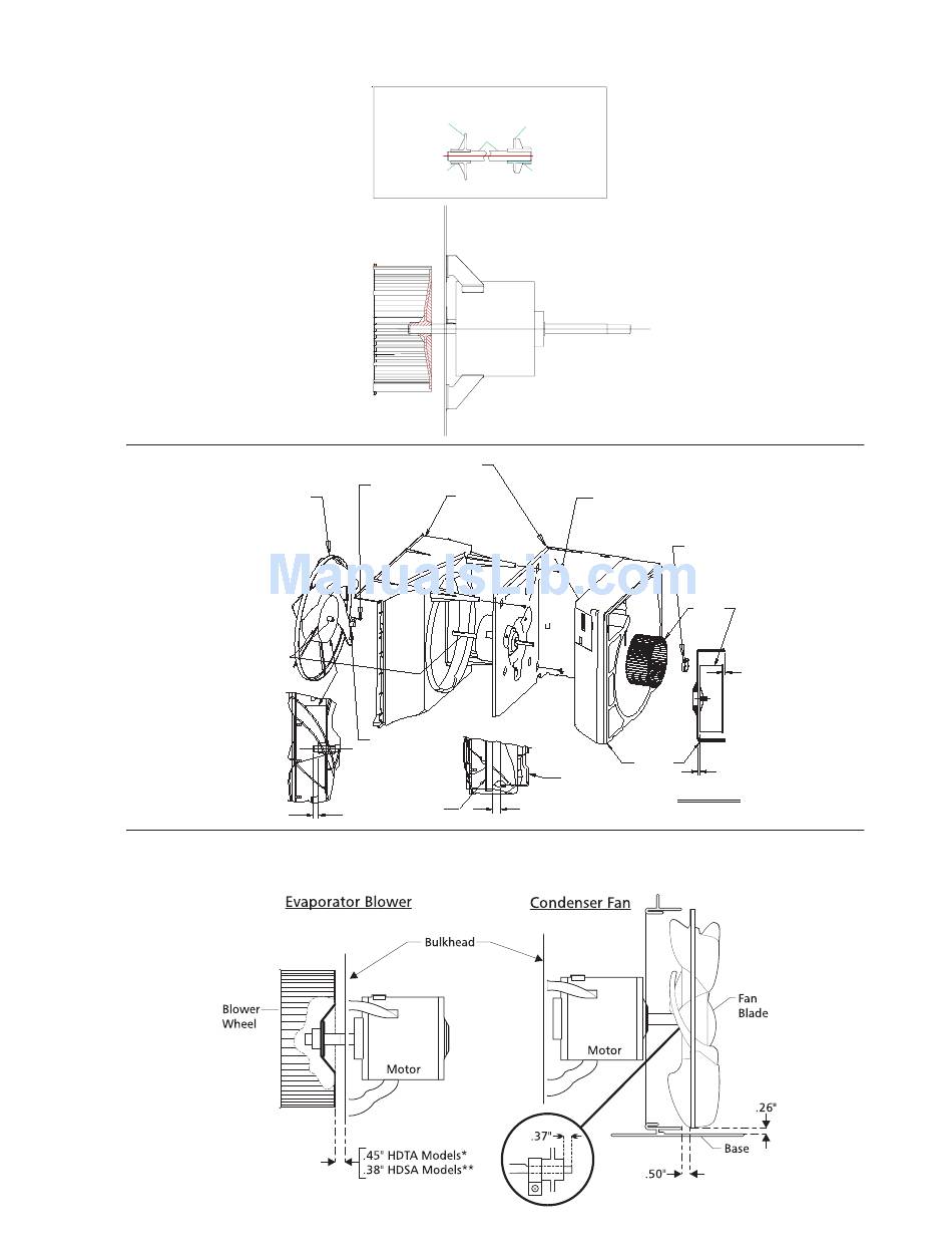
Fan and Blower Location Diagrams
COND. FAN
Heavy Duty
Top Control
.370
REF.
BLOWER WHEEL
CONDENSER FAN
To be fully seated
To be fully seated
against motor shaft.
against motor shaft.
(bottom out on shaft)
(bottom out on shaft)
Motor Shaft
Clamp
Clamp
Evaporator Side
Condenser Side

Motor

BULKHEAD ASSY.
CLAMP SCREW
SHROUD
TORQUE TO
& SEAL
22-27 IN.LBS.
ASSY.
FAN CLAMP
PUSH FAN BLADE
TILL END
OF FLAT
COND. FAN
SLINGER RING
.560

Heavy Duty Side Discharge

14
SCREW (3) SHROUD/
BULKHEAD ASSY.
TORQUE TO 25 IN.LBS.
CLAMP
TORQUE TO
15-20 IN. LBS.
BLOWER
WHEEL
SCROLL
.380
SHROUD
AIR SYSTEM
(H/D T/C)
.300

Hide quick links:

Advertisement

Table of Contents
loading
Need help?

Need help?

Do you have a question about the FAS156N1A and is the answer not in the manual?

Table of Contents