Sign In
Upload
Download
Table of Contents
Contents
Add to my manuals
Delete from my manuals
Share
URL of this page:
HTML Link:
Bookmark this page
Add
Manual will be automatically added to "My Manuals"
Print this page
×
Bookmark added
×
Added to my manuals
Manuals
Brands
Fujitsu Manuals
Air Conditioner
General ASHG30KMTA
Design & technical manual
Fujitsu General ASHG30KMTA Design & Technical Manual page 9
Hide thumbs
1
2
Table Of Contents
3
4
5
6
7
8
9
10
11
12
13
14
15
16
17
18
19
20
21
22
23
24
25
26
27
28
29
30
31
32
33
34
35
36
37
38
39
40
41
42
43
44
45
46
47
48
49
50
51
52
53
54
55
56
57
58
59
60
61
62
63
64
page
of
64
Go
/
64
Contents
Table of Contents
Bookmarks
Table of Contents
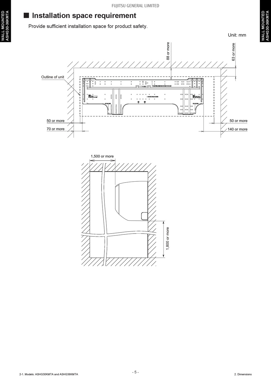
¢ Installation space requirement
Provide sufficient installation space for product safety.
Unit: mm
Outline of unit
50 or more
50 or more
70 or more
140 or more
1,500 or more
- 5 -
2-1. Models: ASHG30KMTA and ASHG36KMTA
2. Dimensions
Table of
Contents
Previous
Page
Next
Page
1
...
6
7
8
9
10
11
12
13
Show Quick Links
Quick Links:
Specifications
Wiring Diagrams
Models: Aohg30Kmta and Aohg36Kmta
Hide quick links:
Permanently
Temporary
Cancel
Table of Contents
Need help?
Do you have a question about the General ASHG30KMTA and is the answer not in the manual?
Ask a question
Go to Questions and Answers
Related Manuals for Fujitsu General ASHG30KMTA
Air Conditioner Fujitsu ASHG07KPCA Service Manual
Wall-mounted type, refrigerant r32, indoor/outdoor unit (18 pages)
Air Conditioner Fujitsu General ASHG07KMCC Design & Technical Manual
Wall mounted type (63 pages)
Air Conditioner Fujitsu AUXG07KVLA Service Manual
(471 pages)
Air Conditioner Fujitsu AUXG07KVLA Manual
2-unit multi-split type (403 pages)
Air Conditioner Fujitsu General ASHG09KMCDN Design & Technical Manual
Wall mounted type (65 pages)
Air Conditioner Fujitsu GENERAL ASHG07KGTA Design & Technical Manual
Air conditioner wall mounted type (64 pages)
Air Conditioner Fujitsu ASHG07KGTE Service Manual
(147 pages)
Air Conditioner Fujitsu GENERAL ARXH12-18KMTAP Design & Technical Manual
3-unit multi-split type, indoor/outdoor (572 pages)
Air Conditioner Fujitsu iGENERAL ARXG07-14KSLAP Service Manual
3-unit multi-split type (441 pages)
Air Conditioner Fujitsu GENERAL ASHG18KMTE Service Manual
(158 pages)
Air Conditioner Fujitsu General ASHG07KMCE Service Manual
Wall mounted type (155 pages)
Air Conditioner Fujitsu General ASHG07KPCE Service Manual
Wall mounted type (132 pages)
Air Conditioner Fujitsu GENERAL ASHG12KGTA Design & Technical Manual
Air conditioner wall mounted type (64 pages)
Air Conditioner Fujitsu AOHG18KLCA Design & Technical Manual
(47 pages)
Air Conditioner Fujitsu GENERAL ASHG07KETF Service Manual
Wall mounted type, indoor/outdoor (179 pages)
Air Conditioner Fujitsu GENERAL ASHG09KMCEN-B Service Manual
Wall mounted type, for cold climate region, indoor/outdoor (189 pages)
Related Products for Fujitsu General ASHG30KMTA
Fujitsu ASHG07LJCA
Fujitsu ASHG12LMCA
Fujitsu ASHG24LFCA
Fujitsu ASHG24LFCC
Fujitsu General ASHG12KMTA
Fujitsu ASHG07KETA
Fujitsu ASHG12KGTE
Fujitsu ASHG07KMCE
Fujitsu ASHG09KMCE
Fujitsu ASHG07KETE-B
Fujitsu ASHG14KETE
Fujitsu ASHG12LZCA
Fujitsu GENERAL ASHG09KMCEN
Fujitsu iGENERAL ASHG07-14KMCC
Fujitsu GENERAL ASHG07KETF
Fujitsu GENERAL ASHG07KETF-B
This manual is also suitable for:
General ashg36kmta
General aohg30kmta
General aohg36kmta
Table of Contents
Print
Rename the bookmark
Delete bookmark?
Delete from my manuals?
Login
Sign In
OR
Sign in with Facebook
Sign in with Google
Upload manual
Upload from disk
Upload from URL
Need help?
Do you have a question about the General ASHG30KMTA and is the answer not in the manual?