Laundry Center Dimensions - Frigidaire Ffle3911Qw Technical & Service Manual

Table of Contents

Advertisement

WARNING
EXPLOSION HAZARD
Do not install the dryer where gasoline or other flammables are kept or stored. If the dryer is installed in a garage,
it must be a minimum of 18 inches (45.7 cm) above the floor. Failure to do so can result in death, explosion, fire or
burns.

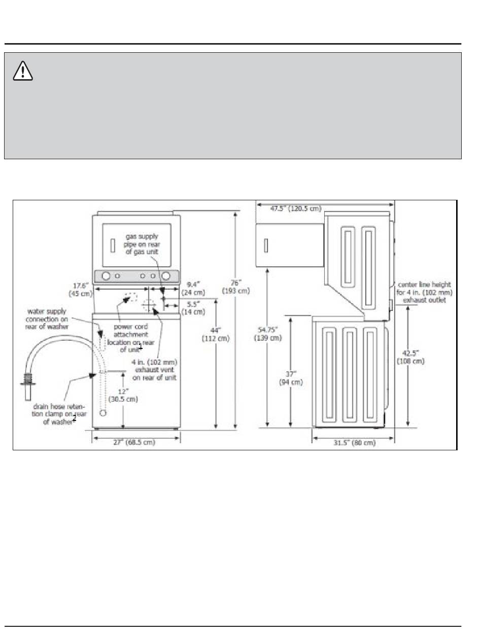
6.4 Laundry Center Dimensions

1- Power supply cord length on gas unit approximately 60 inches (152.5 cm).
2- Loose drain hose length beyond clamp approximately 52 inches (132 cm).
42

Hide quick links:

Advertisement

Table of Contents
loading
Need help?

Need help?

Do you have a question about the FFLE3911QW and is the answer not in the manual?

This manual is also suitable for:

Fflg3911qwFfle4033qwFflg4033qw

Table of Contents

Save PDF