GE D60 Instruction Manual page 65

Line distance protection system
Hide thumbs Also See for D60:
Table of Contents
CHAPTER 3: INSTALLATION
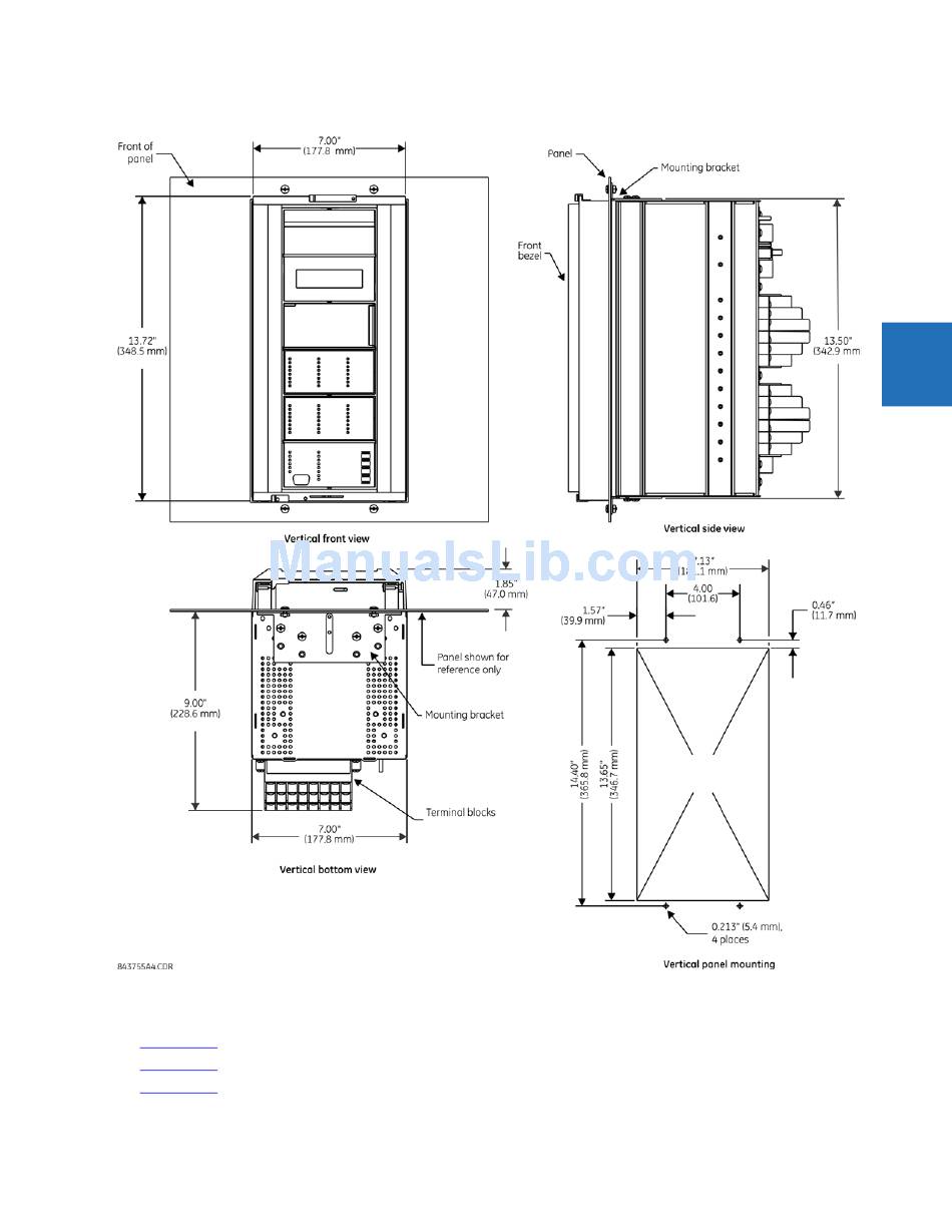
Figure 3-6: Vertical and mounting dimensions (standard front panel)
For side-mounting D60 devices with the enhanced front panel, see the following documents available on the UR DVD and
the GE Grid Solutions website:
GEK-113180
— UR-Series UR-V Side-Mounting Front Panel Assembly Instructions
GEK-113181
— Connecting a Remote UR-V Enhanced Front Panel to a Vertical UR Device Instruction Sheet
GEK-113182
— Connecting a Remote UR-V Enhanced Front Panel to a Vertically-Mounted Horizontal UR Device
Instruction Sheet
D60 LINE DISTANCE PROTECTION SYSTEM – INSTRUCTION MANUAL
PANEL CUTOUTS
3
3-7
Table of Contents
loading
Need help?

Need help?

Do you have a question about the D60 and is the answer not in the manual?

Table of Contents